Wszystko kupisz. Wszystko sprzedasz.
0
Zaloguj się
+ Dodaj ogłoszenie

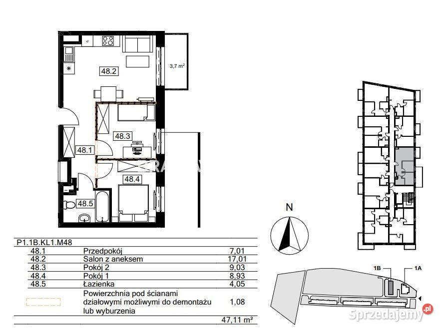
Mieszkanie 45.89m 3-pokojowe Kraków Agatowa

1 / 11
Obserwuj
  • Oferta od firmy
  • Rynek pierwotny
  • Cena za m² 12835 zł/m²
  • Powierzchnia 45.89 m²
  • Liczba pokoi 3
  • Rok budowy 2023
  • Forma własności własność
  • Piętro 1
ZŁOCIEŃ - NOWOCZESNE OSIEDLE MIESZKANIOWE. Prezentujemy nowoczesne osiedle zlokalizowane w południowo-wschodniej części miasta. W III etapie powstanie czteropiętrowy budynek , w którym znajdują się mieszkania w przedziale od 25 do 68 m2 . Podziemna część budynku przeznaczona jest na garaż z miejscami parkingowymi. Mieszkania na parterach będą mieć ogródki , na wyższych piętrach balkony . Mieszkania na najwyższych piętrach będą posiadać duże tarasy na dachu. Inwestycja budowana w tradycyjnej technologii. Mieszkania sprzedawane w stanie deweloperskim (tynki gipsowe, wylewki, instalacje). Wokół malownicza okolica , zielona przestrzeń, a przy tym dobra komunikacja miejska. Atrakcyjne połączenie z obwodnicą S7 i A4. Niedaleko inwestycji realizowany będzie przystanek kolei aglomeracyjnej, dzięki któremu z łatwością można dostać się do centrum miasta. W okolicy znajdują się liczne sklepy spożywcze oraz inne punkty handlowo-usługowe. Termin zakończenia budowy zaplanowano na II kwartał 2024 r. Zapraszam do kontaktu: Marek Popiela +48 *** *** *** ma**k@s*******.pl ::DODATKOWE INFORMACJE Rodzaj budynku: budynek wielorodzinny Dozór budynku: brak Głośność: ciche Widok: na inne budynki Gaz: brak Woda: tak - miejska Dojazd: asfalt Otoczenie: zabudowa wielorodzinna Ogrzewanie: C.O. miejskie Linie telefoniczne: TAK Komunikacja publ.: autobus miejski, tramwaj Winda: TAK Liczba wind: 1 Rozkład: rozkładowe Usytuowanie: jednostronne Drzwi antywłamaniowe: TAK Opłaty w czynszu: - Rodzaj mieszkania: jednopoziomowe Garaż: garaż pod budynkiem Stan lokalu: deweloperski Okna: PCV Instalacje: nowe Balkon: jest Liczba balkonów: 1 Powierzchnia balkonów/tarasów [m2]: 2,9000 Rok budowy: 2023 Liczba pokoi: 3 Liczba sypialni: 1 Podłogi pokoi: wylewka Ściany pokoi: zwykłe Typ kuchni: aneks kuchenny - połączony z salonem Rodzaj kuchni: otwarta na salon Podłoga kuchni: wylewka Typ łazienki: razem z wc Liczba łazienek: 1 Glazura łazienki: bez glazury Podłoga łazienki: wylewka Ściany łazienki: zwykłe Liczba przedpokoi: 1 Podłoga przedpokoi: wylewka Ściany przedpokoi: zwykłe ::LINK DO STRONY http*********************************** ::KONTAKT DO AGENTA Marek Popiela +48 ***-***-*** ma**k@s*******.pl ::DANE BIURA Oddział BS2, Rynek Pierwotny Przewóz 47 30-081 Kraków 12 630-90-45 -------------------------- ::GRATIS | Nasza prowizja zawiera: koszt przedwstępnej notarialnej umowy sprzedaży nieruchomości z rynku wtórnego. ::GWARANCJA | Gwarancja zwrotu zadatku. Więcej informacji na sadurscy.pl/zwrot-zadatku/

Dodatkowe informacje

  • miejsce parkingowe

Skontaktuj się

Bracia Sadurscy D. Sadurski sp.k.

Dodaj załącznik
Liczba odsłon: 341 | Numer: SPI_BS2-MS-310828
Zgłoś nadużycie
589 000 zł 12835 zł/m²

Bracia Sadurscy D. Sadurski sp.k.

FIRMA

Na Sprzedajemy.pl od Gru 2012
Kraków małopolskie Zobacz na mapie »

Bracia Sadurscy D. Sadurski sp.k.

FIRMA

Na Sprzedajemy.pl od Gru 2012
Kraków małopolskie Zobacz na mapie »
Oferty firmy

Adres

Bracia Sadurscy D. Sadurski sp.k.
Kapelanka 1a / 1
30347 Kraków
Zobacz na mapie
tel.: 123110188

Godziny otwarcia

teraz otwarte
  • Poniedziałek - Piątek09:00 - 18:00
  • Sobota - Niedzielanieczynne
  • O nas

  • Bezpieczenstwo

  • Pomoc

  • Poradnik kupującego

  • Mapa kategorii

  • Ogłoszenia archiwalne

  • Oferta dla firm

Copyright © 2011-2025 Sprzedajemy.pl Sp. z o.o. Korzystanie z serwisu oznacza akceptację regulaminu.

Zarządzaj powiadomieniami
Odblokuj powiadomienia