Wszystko kupisz. Wszystko sprzedasz.
0
Zaloguj się
+ Dodaj ogłoszenie

Przestronne mieszkanie 3-pokojowe 64,07m2

1 / 12
Obserwuj
  • Oferta od firmy
  • Rynek pierwotny
  • Cena za m² 20000 zł/m²
  • Powierzchnia 64.07 m²
  • Zabudowa apartamentowiec
  • Liczba pokoi 3
  • Ogrzewanie sieć
  • Rok budowy 2026
  • Piętro 1
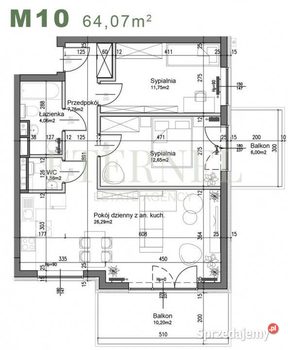
Przestronne mieszkanie 3-pokojowe 64,07m2 – ul. Śliwkowa Opis nieruchomości: Prezentujemy przestronne trzypokojowe mieszkanie o powierzchni 64,07 m2 położone na pierwszym piętrze budynku przy ul. Śliwkowej w Krakowie. Układ został zaprojektowany z myślą o rodzinach ceniących przestrzeń i funkcjonalność. Stan mieszkania: Mieszkanie w stanie deweloperskim z funkcjonalnym układem. Centrum mieszkania stanowi salon z aneksem kuchennym 26,29 m2 z wyjściem na dwa balkony. Strefa prywatna obejmuje dwie sypialnie: 12,65 m2 i 11,75 m2. Do dyspozycji mieszkańców jest łazienka 4,06 m2, dodatkowe WC 1,56 m2 oraz przedpokój 7,76 m2 z miejscem na pojemną zabudowę. Stan budynku: Nowoczesny budynek w stanie deweloperskim z dużymi przeszkleniami i funkcjonalnym podziałem na strefę dzienną oraz prywatną. Lokalizacja i atuty danej lokalizacji: Doskonała lokalizacja przy ul. Śliwkowej w Krakowie zapewniająca spokój i wygodę mieszkania na pierwszym piętrze. Mieszkanie posiada dwa balkony — 10,20 m2 oraz 6,00 m2 — które tworzą komfortowe, dodatkowe strefy relaksu. Mieszkanie wyróżnia się funkcjonalnym układem, dużymi przeszkleniami i podziałem na strefę dzienną oraz prywatną. Dwa balkony i rozdzielona strefa sanitarna znacząco podnoszą komfort codziennego życia, czyniąc tę ofertę idealną dla rodzin oraz osób ceniących przestrzeń i elastyczną aranżację wnętrz. Cena: 1 281 400 zł (20 000 zł za m2). Informacja dodatkowa: Na pierwszym piętrze budynku znajduje się również dziewięć innych mieszkań o różnych metrażach z własnymi balkonami lub loggiami. Klauzula: Powyższa oferta ma charakter informacyjny i nie stanowi oferty handlowej w rozumieniu art. 66 §1 Kodeksu Cywilnego. Zgodnie z ustawą o gospodarce nieruchomościami (Rozdz. 2, art. 180 pkt 3), przed oględzinami nieruchomości wymagane jest podpisanie standardowej umowy pośrednictwa. Oferta wysłana z programu dla biur nieruchomości ASARI CRM (asaricrm.com)

Dodatkowe informacje

  • balkon
  • garaż

Skontaktuj się

PRIME NEST Sp. z O. O.

Dodaj załącznik
Liczba odsłon: 70 | Numer: SPI_85/17662/OMS
Zgłoś nadużycie
1 281 400 zł 20000 zł/m²

PRIME NEST Sp. z O. O.

FIRMA

Na Sprzedajemy.pl od Maj 2025
Kraków małopolskie Zobacz na mapie »

PRIME NEST Sp. z O. O.

FIRMA

Na Sprzedajemy.pl od Maj 2025
Kraków małopolskie Zobacz na mapie »
Oferty firmy

Adres

PRIME NEST Sp. z O. O.
Jana Pawła II 58 / 2.1
31-571 Kraków
Zobacz na mapie
tel.: 577707143

Godziny otwarcia

  • Poniedziałek - Sobota09:00 - 20:00
  • Niedziela09:00 - 12:00
  • O nas

  • Bezpieczenstwo

  • Pomoc

  • Poradnik kupującego

  • Mapa kategorii

  • Ogłoszenia archiwalne

  • Oferta dla firm

Copyright © 2011-2025 Sprzedajemy.pl Sp. z o.o. Korzystanie z serwisu oznacza akceptację regulaminu.

Zarządzaj powiadomieniami
Odblokuj powiadomienia