Wszystko kupisz. Wszystko sprzedasz.
0
Zaloguj się
+ Dodaj ogłoszenie

Syndyk sprzeda trzy budynki handlowo-usługowe w Warszawie

1 / 9
Obserwuj
  • Oferta od firmy
  • Rynek wtórny
  • Cena za m² 15167 zł/m²
  • Powierzchnia 659 m²
  • Piętro parter
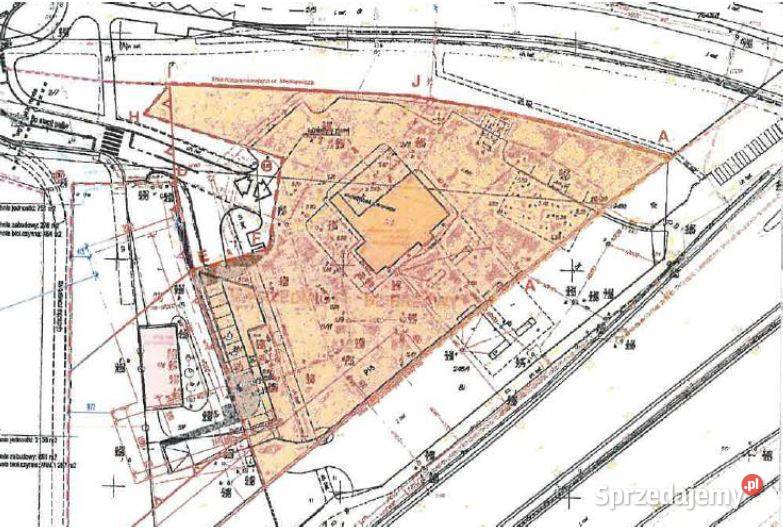
Syndyk masy upadłości spółki Projekt Rudzka Sp. z o.o. w upadłości z siedzibą w Warszawie przy ul. Grzybowskiej 5A, 00-132 Warszawa, KRS: 0000724217, ogłasza konkurs na sprzedaż prawa użytkowania wieczystego nieruchomości gruntowej położonej przy ul. al. Armii Krajowej 10/ul. Rudzkiej 3 w Warszawie w dzielnicy Bielany, stanowiącej działki gruntu o numerach ewidencyjnych 2/8 i 6/11, z obrębu 7-04-10 o powierzchni 7587 m2, dla której Sąd Rejonowy dla Warszawy-Mokotowa w Warszawie, VI Wydział Ksiąg Wieczystych prowadzi księgę wieczystą o numerze WA1M/00497248/4, wraz z prawem własności następujących budynków: 1 kondygnacyjnego budynku handlowo-usługowego pod adresem ul. al. Armii Krajowej 10 w Warszawie, nr ewidencyjny 6/2;1, o powierzchni zabudowy 147 m2; 1 kondygnacyjnego budynku handlowo-usługowego pod adresem ul. al. Armii Krajowej 10 w Warszawie, nr ewidencyjny 6/2;2, o powierzchni zabudowy 247 m2; 1 kondygnacyjnego budynku handlowo-usługowego pod adresem ul. al. Armii Krajowej 10 w Warszawie, nr ewidencyjny 6/2;3, o powierzchni zabudowy 265 m2; za cenę nie niższą niż 9.995.000,00 zł netto (słownie: dziewięć milionów dziewięćset dziewięćdziesiąt pięć tysięcy złotych, 00/100). Warunkiem uczestnictwa w konkursie ofert jest wpłacenie wadium w wysokości 999.500,00 zł (słownie: dziewięćset dziewięćdziesiąt dziewięć tysięcy pięćset złotych 00/100). Zainteresowani powinni składać oferty w nieprzekraczalnym terminie do dnia 21 listopada 2025 r. osobiście do depozytu Kancelarii Notarialnej Sądel-Bendkowska Perczyńska Konończuk Żuława spółka partnerska, ul. Okopowa 58/72 w Warszawie (budynek KLIF Tower, 3. piętro). Otwarcie ofert nastąpi w dniu 26 listopada 2025 r. o godzinie 10:00 w ww. Kancelarii Notarialnej. Dodatkowych informacji udziela syndyk pod nr. tel. 608-488-301, ***-***-*** lub adresem e-mail: **@j**********com, d.*********k@j**********com

Skontaktuj się

Administer Polska Spółka Z Ograniczoną Odpowiedzialnością

Dodaj załącznik
Liczba odsłon: 811
Zgłoś nadużycie
9 995 000 zł 15167 zł/m²

Administer Polska Spółka Z Ograniczoną Odpowiedzialnością

Na Sprzedajemy.pl od Sie 2019
Warszawa mazowieckie Zobacz na mapie »

Administer Polska Spółka Z Ograniczoną Odpowiedzialnością

Na Sprzedajemy.pl od Sie 2019
Warszawa mazowieckie Zobacz na mapie »
Oferty firmy

Adres

Administer Polska Spółka Z Ograniczoną Odpowiedzialnością
Marchewkowa 10
52-311 Wrocław
Zobacz na mapie
tel.: 717072911
  • O nas

  • Bezpieczenstwo

  • Pomoc

  • Poradnik kupującego

  • Mapa kategorii

  • Ogłoszenia archiwalne

  • Oferta dla firm

Copyright © 2011-2025 Sprzedajemy.pl Sp. z o.o. Korzystanie z serwisu oznacza akceptację regulaminu.

Zarządzaj powiadomieniami
Odblokuj powiadomienia