Wszystko kupisz. Wszystko sprzedasz.
0
Zaloguj się
+ Dodaj ogłoszenie

Ogłoszenie dom wolnostojący Opole 120.9m2

1 / 12
Obserwuj
  • Oferta od firmy
  • Rynek wtórny
  • Cena za m² 6286 zł/m²
  • Powierzchnia 120.9 m²
  • Powierzchnia działki 482 m²
  • Zabudowa wolnostojący
  • Liczba pięter 2 piętra
  • Stan do wykończenia
  • Rok budowy 2022
  • Liczba pokoi 3
  • Typ mieszkalny
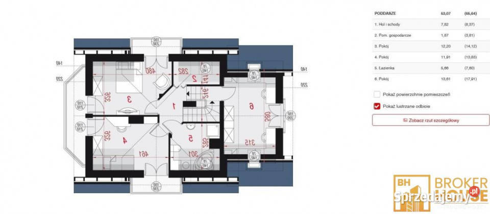
Kotórz Wielki Dom wolnostojący nieopodal jezior Turawskich - w trakcie wykończenia do stanu deweloperskiego Kupujący nie płaci podatku PCC Oferta na wyłączność! Budynek parterowy z użytkowym poddaszem, niepodpiwniczony, z garażem jednostanowiskowym o łącznej powierzchni ok. 120,9m2. Dom posadowiony na działce 482m2 w miejscowości Kotórz Wielki, ok. 8km do miasta Opola. Cicha i spokojna okolica, brak uciążliwego sąsiedztwa. Bardzo szybki dojazd do wojewódzkiego miasta Opola. Bliskość rekreacji wokół zbiornika Turawskiego. Kotórz W. ze względu na położenie cieszy się dużym powodzeniem wśród osób ceniących sobie spokój i rekreację a jednocześnie dobry i szybki kontakt z dużym miastem. Dom wykończony z zewnątrz. Powierzchnia użytkowa 95,3 m2 + pom. gosp. 2,0 m2 + kotłownia 5,6 m2 + garaż: 18 m2. Dom wybudowany wg projektu: "Dom w Perłówce" biura projektowego Archon. Układ pomieszczeń: Budynek przeznaczony dla 4-5 osobowej rodziny. Na parterze zaprojektowano strefę dzienną: holl, salon z kominkiem, jadalnię, kuchnię. Znalazła się tu również garderoba, łazienka i pomieszczenie gospodarcze z jednostką grzewczą - docelowo przewidziana pompa ciepła. Garaż. Na poddaszu zlokalizowano trzy sypialnie oraz łazienkę. Technologia budowy: Dom kompletnie wykończony z zewnątrz. Ściany z pustaka ceramicznego 25 cm, strop żelbetowy, dach dwuspadowy, pokrycie z dachówki ceramicznej. Rynny metalowe w kolorze grafitowym. Ocieplenie ścian styropianem 20 cm, elewacja pokryta tynkiem akrylowym i elementami imitacji drewna. Okna trójszybowe plastikowe, profil od wewnątrz - biały, od zewnątrz grafitowy. Elektryczne rolety zewnętrzne w każdym oknie w kolorze grafitowym. Brama garażowa grafitowa ocieplana. Drzwi zewnętrzne, wejściowe stalowe firmy Wikęd grafitowe ocieplane. Drzwi zewnętrzne do garażu stalowe ocieplane grafitowe. Obecnie cena obejmuje prace w zakresie: - instalacje podtynkowe (wod.-kan., c.o., elektryczna, antenowa, alarmowa, internetowa) - tynkowanie - ogrzewanie podłogowe - posadzki Planowane wykończenie domu do końca br. - cena za pełny stan deweloperski 850.000,00 zł. Termin przekazania: od zaraz. Nie zwlekaj, zadzwoń lub napisz do mnie już teraz, umów się na osobistą prezentację. Cena do negocjacji! Doradca ds. nieruchomości odpowiedzialny za ofertę: Anna Pasznicka: *** *** ***, 77 441 27 22, mail: an***********a@b**********.pl, pod nadzorem licencji 11486. Pozostałe oferty na www.************** Nota prawna: Informacje dotyczące opisu nieruchomości podane są przez właściciela, mają charakter wyłącznie informacyjny i mogą podlegać aktualizacji. Oferta dotycząca nieruchomości stanowi zaproszenie do rokowań zgodnie z art. 71 Kodeksu Cywilnego i nie stanowi oferty określonej w art. 66 i następnych KC. BIURO BROKER HOUSE NIERUCHOMOŚCI, SPRZEDAŻ, WYNAJEM DOMY, MIESZKANIA, POWIERZCHNIE KOMERCYJNE OPOLE, WOJ. OPOLSKIE--- POŚREDNICTWO KREDYTOWE---ul. Sempołowskiej 1, Opole. Kontakt: 77/ 441 27 22. UMÓW SIĘ NA BEZPŁATNE SPOTKANIE Z DORADCĄ KREDYTOWYM BROKER HOUSE NIERUCHOMOŚCI, KTÓRY BEZPŁATNIE SPRAWDZI TWOJĄ ZDOLNOŚĆ KREDYTOWĄ ORAZ PORÓWNA OFERTĘ KREDYTÓW HIPOTECZNYCH W BANKACH. Oferta wysłana z programu IMO dla biur nieruchomości

Droga

  • utwardzona

Dodatkowe informacje

  • garaż

Skontaktuj się

Broker House Nieruchomości

Dodaj załącznik
Liczba odsłon: 257 | Numer: SPI_6874
Zgłoś nadużycie
760 000 zł 6286 zł/m²

Broker House Nieruchomości

FIRMA

Na Sprzedajemy.pl od Paź 2016
Opole opolskie Zobacz na mapie »

Broker House Nieruchomości

FIRMA

Na Sprzedajemy.pl od Paź 2016
Opole opolskie Zobacz na mapie »
Oferty firmy

Adres

Broker House Nieruchomości
<p>Ul. Sempołowskiej 1,<br>45-044 Opole<br><br>Tel
45-044 Opole
Zobacz na mapie
tel.: 774412722

Godziny otwarcia

  • Poniedziałek - Piątek09:00 - 17:00
  • Sobota - Niedzielanieczynne
  • O nas

  • Bezpieczenstwo

  • Pomoc

  • Poradnik kupującego

  • Mapa kategorii

  • Ogłoszenia archiwalne

  • Oferta dla firm

Copyright © 2011-2025 Sprzedajemy.pl Sp. z o.o. Korzystanie z serwisu oznacza akceptację regulaminu.

Zarządzaj powiadomieniami
Odblokuj powiadomienia