Wszystko kupisz. Wszystko sprzedasz.
0
Zaloguj się
+ Dodaj ogłoszenie Dla firm

Ogłoszenie dom 234 metry Dobra

1 / 12
Obserwuj
  • Oferta od firmy
  • Rynek wtórny
  • Cena za m² 3418 zł/m²
  • Powierzchnia 234 m²
  • Powierzchnia działki 1600 m²
  • Liczba pięter 3 piętra i więcej
  • Rok budowy 2018
  • Liczba pokoi 7
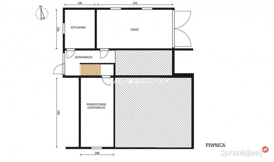
Dobra - przestronny, wolnostojący dom jednorodzinny o pow. użytkowej 179 m 2 z widokiem na Beskid Wyspowy . Klimatyczny dom jednorodzinny położony w miejscowości Dobra zlokalizowanej u podnóża pasma Beskidu Wyspowego, z bezpośrednim dostępem do szlaków turystycznych prowadzących do wieży widokowej na szczycie Mogielicy, jak również do szczytów Ćwilin, Łopień i Śnieżnica oraz z łatwym dojazdem do stacji narciarskiej Kasina Wielka (Kasina Ski - 12 km). Budynek został oddany do użytkowania w 2008 roku , posiada powierzchnię całkowitą wynoszącą 234 m 2 i posadowiony jest na widokowej działce o pow. 16 ar. Konstrukcja budynku jest dwukondygnacyjna, częściowo podpiwniczona, wykonana w technologii tradycyjnej , murowanej ze stropami żelbetowymi, fundamenty betonowe - zazbrojone. Ściany zewnętrzne nośne wykonane w układzie: bloczki gazobetonowe (24 cm), warstwa izolacyjna z wełną mineralna (9 cm), wewnątrz warstwa cegły (12 cm), elewacja tynk mineralny z izolacją termiczną (styropian). Konstrukcja dachowa z więźbą drewnianą, dwuspadową, pokrycie dachowe wykonane z płyt epoksydowych zbrojonych włóknem szklanym , izolacja termiczna stropu i dachu z wełny mineralnej . Budynek wyposażony w wewnętrzną instalację wodno-kanalizacyjną, system centralnego ogrzewania zasilany z pieca na paliwo stałe (24 kW) . Podgrzewanie ciepłej wody użytkowej z systemu CO, z wykorzystaniem elektrycznego zasobnika CWU (Biowar) . Budynek posiada przyłącze do sieci elektroenergetycznej oraz sieci kanalizacyjnej, przyłącze w ody do gminnej sieci wodociągowej. W skład nieruchomości wchodzą: - parter składający się z pokoju dziennego z wyjściem na balkon (27,26 m2), kuchni z jadalnią (19,30 m2), 2 pokoje (14,56 m2, 10,76 m2), łazienki (5,25 m2) , WC (1,36 m2) - poddasze składające się z 4 pokoi/sypialni (19,72 m2, 17,68 m2, 11,40 m2, 6,72 m2) , łazienki (2,20 m2) oraz komunikacji - piwnica obejmująca: garaż (20,16 m2), pomieszczenie gospodarcze (13,92 m2), kotłownię (8,00 m2) Działka położona jest w niezwykle spokojnej okolicy, nad potokiem Łososinka, z nieruchomości roztacza się atrakcyjny widok na otaczające tereny zielone i pobliskie szczyty pasma Beskidu Wyspowego. Nieruchomość bardzo dobrze skomunikowana , dojazd do działki zapewnia gminna droga asfaltowa o bardzo małym natężeniu ruchu, wjazd na DK 28 jest w odległości 900 m. Odległości: siedziba władz gminnych w Dobrej - 2,5 km, odległość do Limanowej wynosi 17 km , Myślenice są oddalone o 40 km, natomiast dystans do granicy miasta Krakowa to 50 km. Najbliższe obiekty użyteczności publicznej : przystanek autobusowy - 900 m , sklep spożywczy - 800 m, szkoła podstawowa w Dobrej - 2,5 km. Biuro pomaga bezpiecznie przeprowadzić transakcję. Zapraszam do kontaktu i na prezentację nieruchomości. Wojciech Sudoł +48 *** *** *** wo***k@s*******.pl ::DODATKOWE INFORMACJE Parking strzeżony (odległość w metrach) [m]: 1000 Prąd: w budynku Gaz: jest Woda: jest Dojazd: asfalt Otoczenie: góry Ogrzewanie: piec węglowy Kanalizacja: miejska Komunikacja publ.: autobus podmiejski Odległość do komunikacji publicznej [m]: 800 Odl. do sklepu [m]: 850 Odl. do szkoły [m]: 2700 Okna: PCV Instalacje: dobre Balkon: duży Liczba balkonów: 1 Powierzchnia ogródka [m2]: 1400 Wymiary działki [m]: 34 x 71 x 27,5 x 34,2 x 15,6 x 41,5 Zagosp. działki: częściowo zagospodarowana Ukształtowanie działki: lekko nachylona Kształt działki: nieregularny Rodzaj domu: jednorodzinny Stan wybudowania: Pod klucz Typ elewacji: tynk zwykły Pokrycie dachu: inne Powierzchnia użytkowa [m2]: 179 Stan budynku: do odświeżenia Podpiwniczenie: częściowo podpiwniczony Garaż: w bryle Ogrodzenie działki: brak Rok budowy: 2018 Liczba pokoi: 7 Wysokość pomieszczeń [m]: 2,5000 Liczba sypialni: 6 Powierzchnia pokoi [m2]: 108,1 Podłogi pokoi: drewniana Ściany pokoi: zwykłe, malowane Wystawa okien - pokoje : Pd, Zach, Wsch Typ kuchni: otwarta połączona z jadalnią Rodzaj kuchni: jasna z oknem Powierzchnia kuchni [m2]: 19,3 Podłoga kuchni: gres Wystawa okien - kuchnia: Wsch Typ łazienki: razem z wc Liczba łazienek: 2 Powierzchnia łazienki [m2]: 7,45 Glazura łazienki: starszego typu Podłoga łazienki: gres Wyposażenie łazienki: WC, umywalka, natrysk Ściany łazienki: glazura Liczba WC: 1 Powierzchnia WC: 1,36 Glazura WC: starszego typu Podłoga WC: gres Ściany WC: glazura Liczba przedpokoi: 3 Powierzchnia przedpokoi [m2]: 35,16 Podłoga przedpokoi: gres Ściany przedpokoi: tynk ozdobny, tynk, malowane ::LINK DO STRONY http*********************************** Zobacz Wirtualny Spacer: http*********************** ::KONTAKT DO AGENTA Wojciech Sudoł +48 ***-***-*** wo***k@s*******.pl ::DANE BIURA Oddział BS5, Nowa Huta Bracia Sadurscy Dariusz Sadurski Os. Kazimierzowskie 36 31-844 Kraków 12 265 10 29

Droga

  • asfalt

Skontaktuj się

Bracia Sadurscy D. Sadurski sp.k.

Dodaj załącznik
Liczba odsłon: 21 | Numer: SPI_BS5-DS-314191
Zgłoś nadużycie
800 000 zł 3418 zł/m²

Bracia Sadurscy D. Sadurski sp.k.

FIRMA

Na Sprzedajemy.pl od Gru 2012
Dobra małopolskie Zobacz na mapie »

Bracia Sadurscy D. Sadurski sp.k.

FIRMA

Na Sprzedajemy.pl od Gru 2012
Dobra małopolskie Zobacz na mapie »
Oferty firmy

Adres

Bracia Sadurscy D. Sadurski sp.k.
Kapelanka 1a / 1
30347 Kraków
Zobacz na mapie
tel.: 123110188

Godziny otwarcia

  • Poniedziałek - Piątek09:00 - 18:00
  • Sobota - Niedzielanieczynne
  • O nas

  • Bezpieczenstwo

  • Pomoc

  • Poradnik kupującego

  • Mapa kategorii

  • Ogłoszenia archiwalne

  • Oferta dla firm

Copyright © 2011-2026 Sprzedajemy.pl Sp. z o.o. Korzystanie z serwisu oznacza akceptację regulaminu.

Zarządzaj powiadomieniami
Odblokuj powiadomienia