Wszystko kupisz. Wszystko sprzedasz.
0
Zaloguj się
+ Dodaj ogłoszenie Dla firm

Oferta sprzedaży mieszkania Wrocław Tadeusza Kutrzeby 128.1m 4-pokojowe

1 / 12
Obserwuj
  • Oferta od firmy
  • Rynek wtórny
  • Cena za m² 8782 zł/m²
  • Powierzchnia 128.1 m²
  • Zabudowa blok
  • Liczba pokoi 4
  • Rok budowy 2024
  • Forma własności własność
  • Piętro 1
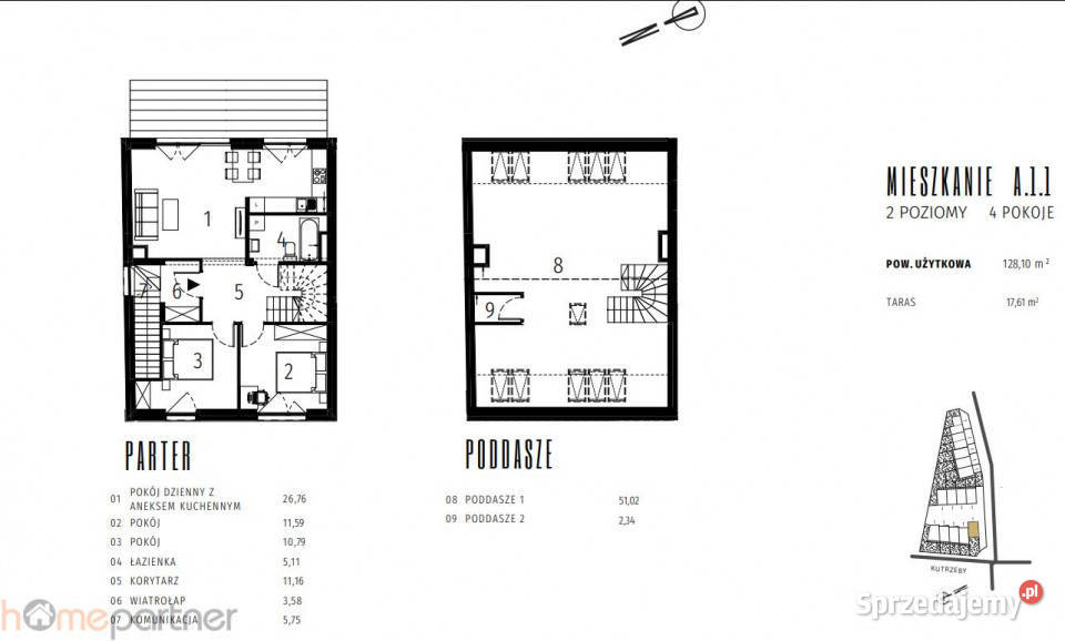
MIESZKANIE 4-POKOJOWE, 2-KONDYGNACYJNE, UL. KUTRZEBY Rynek pierwotny, bez PCC i prowizji Możliwość zakupu również przez obcokrajowców MIESZKANIE GOTOWE DO ODBIORU W ofercie również mieszkania wykończone! Possibility of purchase also by foreigners! Na sprzedaż mieszkanie 2-kondygnacyjne z bardzo przestrzenną antresolą, idealne dla rodziny o powierzchni 128,10 m2, znajdujące się na 1 piętrze budynku zlokalizowanego przy ul. Kutrzeby. Mieszkanie składa się z: POZIOM 0: - salonu z aneksem kuchennym 26,76 m2 - sypialni 11,59 m2 - sypialni 10,79 m2 - łazienki 5,11 m2 - korytarza 11,16 m2 - wiatrołap 3,58 m2 - przedpokoju 5,75 m2 POZIOM 1 - przestrzenna antresola z możliwością podziału na pokoje oraz z przyłączami pod łazienkę 51,02 m2 - pomieszczenie gospodarcze 2,34 m2 Do mieszkania przynależy taras 17,61 m2 Mieszkanie dwustronne, ekspozycja południowo-wschodnia i północno-zachodnia LOKALIZACJA Inwestycja na Ołtaszynie to wyjątkowe osiedle stworzone z myślą o tych, którzy pragną łączyć spokój z dynamicznym życiem miejskim. Osiedle zapewnia dobre połączenia komunikacyjne z centrum Wrocławia oraz bliskość do różnorodnych usług i punktów handlowych. Charakteryzuje się nowoczesną architekturą otoczoną zielenią, co czyni je doskonałym miejscem do zamieszkania dla par i rodzin z dziećmi. KOMUNIKACJA - 100 m przystanek autobusowy z liniami 112 i 612 - bliskość obwodnicy z szybkim wyjazdem z miasta STANDARD: - oszczędna pompa ciepła w cenie - ogrzewanie podłogowe w całym mieszkaniu - wypusty pod zamontowanie paneli fotowoltaicznych - siła pod płytę indukcyjną - gotowe, betonowe schody W ofercie również inne powierzchnie mieszkań Zapraszam do kontaktu 889 759 863 Feel free to contact us, talk and see the apartment. For more information please call us +48 889 759 863. Por favor contáctenos para conocer más sobre la oferta y ver el apartamento. Podemos ayudar con todos los trámites. Para más información por favor llámanos +48 889 759 863. Treść niniejszego ogłoszenia nie stanowi oferty handlowej w rozumieniu Kodeksu Cywilnego. Oferta wysłana z programu IMO dla biur nieruchomości

Dodatkowe informacje

  • dwupoziomowe
  • internet

Skontaktuj się

Home Partner Monika Łabęska - Cioch

Dodaj załącznik
Liczba odsłon: 134 | Numer: SPI_20938
Zgłoś nadużycie
1 125 000 zł 8782 zł/m²

Home Partner Monika Łabęska - Cioch

FIRMA

Na Sprzedajemy.pl od Paź 2014
Wrocław dolnośląskie Zobacz na mapie »

Home Partner Monika Łabęska - Cioch

FIRMA

Na Sprzedajemy.pl od Paź 2014
Wrocław dolnośląskie Zobacz na mapie »
Oferty firmy

Adres

Home Partner Monika Łabęska - Cioch
Miedziana 4 lok. 5
53-441 Wrocław
Zobacz na mapie
tel.: 536496163

Godziny otwarcia

  • Poniedziałek - Piątek09:00 - 17:00
  • Sobota - Niedzielanieczynne
  • O nas

  • Bezpieczenstwo

  • Pomoc

  • Poradnik kupującego

  • Mapa kategorii

  • Ogłoszenia archiwalne

  • Oferta dla firm

Copyright © 2011-2026 Sprzedajemy.pl Sp. z o.o. Korzystanie z serwisu oznacza akceptację regulaminu.

Zarządzaj powiadomieniami
Odblokuj powiadomienia