Wszystko kupisz. Wszystko sprzedasz.
0
Zaloguj się
+ Dodaj ogłoszenie

Nieruchomość położona jest w miejscowości Strzałków, gmina Radomsko, przy …

1 / 2
Obserwuj
  • Oferta od firmy
  • Powierzchnia 586 m²
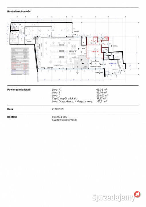
OGŁOSZENIE BEZPOŚREDNIE - BEZ PROWIZJI Nieruchomość położona jest w miejscowości Strzałków, gmina Radomsko, przy ul. Kopernika 1. Na działkach ewid. nr 340/4 i 341/2 znajduje się murowany budynek usługowo-handlowy o łącznej powierzchni 585,73 m², obejmujący lokale handlowe, biurowe oraz gospodarczo-magazynowe. Obiekt parterowy, z pięcioma niezależnymi wejściami, przystosowany jest do obsługi klientów oraz zaplecza techniczno-socjalnego. Przy obiekcie znajduje się brukowany parking. Adres nieruchomości: Strzałków, ul. Kopernika 1 Numer działki: 340/4, 341/2 Powierzchnia budynku: 585,73 m² Powierzchnia lokali: Lokal A: 69,36 m² - 2500,00 zł netto czynsz Lokal B: 59,76 m² - 2000,00 zł netto czynsz Lokal C: 258,03 m² - 8500,00 netto czynsz Część wspólna lokali: 31,27 m² Lokal Gospodarczo - Magazynowy: 167,31 m² Dostęp i uzbrojenie: Nieruchomość posiada bezpośredni dostęp do drogi powiatowej oraz pełne uzbrojenie w sieci infrastruktury technicznej - energię elektryczną, wodociąg, kanalizację
 i centralne ogrzewanie. Atuty inwestycyjne: Atrakcyjna lokalizacja przy drodze powiatowej z Radomska w kierunku Kobiel Wielkich / Przedborza, w lokalizacji obecnie znajduje się sklep Delikatesy Centrum, były w niej także punkt apteczny i siedziba oddziału banku. Zapewnia duży potencjał handlowy i usługowy. Nieruchomość idealna pod działalność biurową, handlową lub magazynową,
 z możliwością adaptacji powierzchni do indywidualnych potrzeb najemcy. Ogłoszenie dodane do wielu portali nieruchomości przez portal www.****************

Skontaktuj się

Odwlasciciela.pl - Dodaj Ogłoszenie do 100 portali

Dodaj załącznik
Liczba odsłon: 63 | Numer: SPI_38423
Zgłoś nadużycie
13 000 zł

Odwlasciciela.pl - Dodaj Ogłoszenie do 100 portali

FIRMA

Na Sprzedajemy.pl od Maj 2019
Strzałków łódzkie Zobacz na mapie »

Odwlasciciela.pl - Dodaj Ogłoszenie do 100 portali

FIRMA

Na Sprzedajemy.pl od Maj 2019
Strzałków łódzkie Zobacz na mapie »
Oferty firmy

Adres

Odwlasciciela.pl - Dodaj Ogłoszenie do 100 portali
odwlasciciela.pl - ogłaszanie nieruchomości
38-440 Iwonicz
Zobacz na mapie

Godziny otwarcia

teraz otwarte
  • Poniedziałek - Piątek09:00 - 17:00
  • Sobota - Niedzielanieczynne
  • O nas

  • Bezpieczenstwo

  • Pomoc

  • Poradnik kupującego

  • Mapa kategorii

  • Ogłoszenia archiwalne

  • Oferta dla firm

Copyright © 2011-2025 Sprzedajemy.pl Sp. z o.o. Korzystanie z serwisu oznacza akceptację regulaminu.

Zarządzaj powiadomieniami
Odblokuj powiadomienia