Nieruchomość inwestycyjna, Kęty przy rondzie
- 26 Sty 16:20
- Nr ogłoszenia: 72478941
PARTNER PREMIUM
1 / 12
- Oferta od firmy
- Rynek wtórny
- Cena za m² 3062 zł/m²
- Powierzchnia 160 m²
- Ilość pomieszczeń 8
KRYSTIAN STAŃCZYK
Agent prowadzący
693 248 448
Nieruchomość z wyjątkową lokalizacją i potencjałem usługowo-mieszkaniowym
Lokalizacja:
* Województwo: Małopolskie
* Powiat: Oświęcim
* Gmina: Kęty
* Ul. Krakowska 53
Opis nieruchomości:
Prezentujemy Państwu nieruchomość o kapitalnej lokalizacji, idealną pod inwestycję usługowo-mieszkaniową. Nieruchomość znajduje się tuż przed rondem, gdzie krzyżują się droga krajowa nr 52 oraz droga wojewódzka nr 948, zapewniając doskonałą komunikację z Oświęcimiem, Krakowem, Żywcem oraz Bielskiem-Białą.
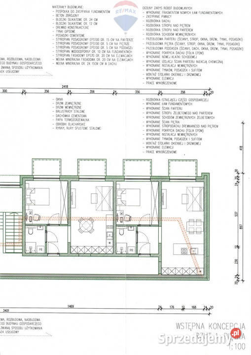
Budynek wykonany jest z cegły, suchy, solidny i w dobrym stanie technicznym. Dzięki temu doskonale nadaje się do remontu lub rozbudowy. Wszystkie media są dostępne: woda, kanalizacja, gaz oraz prąd.
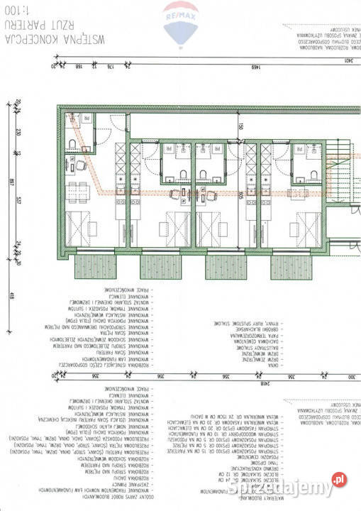
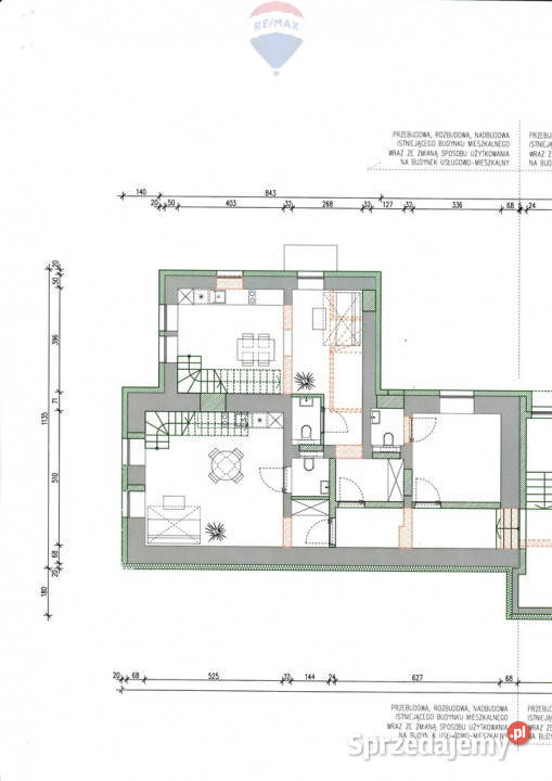
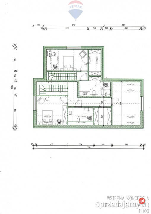
Na ten moment została przygotowana koncepcja przebudowy istniejących zabudowań, która przewiduje:
* adaptację kamienicy na 5 lokali mieszkalnych o powierzchni od 35 do 65 m2.
* przebudowę budynku usługowego z przeznaczeniem na 8 lokali usługowych o powierzchni ok 22m2 każdy z możliwością połączenia sąsiadujących lokali uzyskując większe powierzchnie.
Działki wchodzące w skład nieruchomości:
* 5088, 5086/4, 5086/13, 5087/6, 5087/4
Łączna powierzchnia działek: 10 arów.
Zgodnie z miejscowym planem zagospodarowania przestrzennego działki oznaczone są symbolem 84MU teren usługowo-mieszkaniowy.
* Umowa na wyłączność kupujący nie płaci prowizji.
RE/MAX Invest
ul. Wyzwolenia 1
43-300 Bielsko-Biała
** *** ** **
Informacja przekazywana przez agenta / właściciela biura uważana jest za dokładną i rzetelną, ale nie jest gwarantowana i powinna być niezależnie sprawdzona.
W przypadku tej oferty wynagrodzenie naszego biura pokrywa właściciel nieruchomości.
Opis oferty zawarty na stronie internetowej sporządzany jest na podstawie oględzin nieruchomości oraz informacji uzyskanych od właściciela, może podlegać aktualizacji i nie stanowi oferty określonej w art. 66 i następnych K.C.
Informacje dodatkowe
- dojazd asfaltowy
490 000 zł
3062 zł/m²
