Wszystko kupisz. Wszystko sprzedasz.
0
Zaloguj się
+ Dodaj ogłoszenie Dla firm

Mieszkanie Wrocław Gnieźnieńska 58.87m2 3 pokoje

1 / 10
Obserwuj
  • Oferta od firmy
  • Rynek wtórny
  • Cena za m² 16969 zł/m²
  • Powierzchnia 58.87 m²
  • Zabudowa blok
  • Liczba pokoi 3
  • Rok budowy 2023
  • Forma własności własność
  • Piętro parter
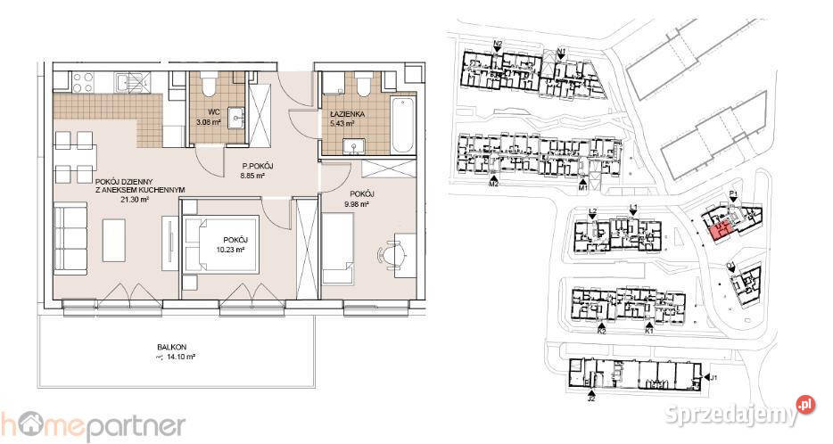
3-POKOJOWE MIESZKANIE IDEALNE DLA RODZINY, SZCZEPIN Bez prowizji i podatku PCC Na sprzedaż 3-pokojowe mieszkanie o powierzchni 58,87 m2 znajdujące się na parterze inwestycji deweloperskiej, zlokalizowanej przy ul. Gnieźnieńskiej (Stare Miasto, Szczepin). Mieszkanie gotowe do odbioru INWESTYCJA Osiedle ma charakter spokojnej przystani - nieopodal centrum miasta a jednak otoczonej terenami zieleni. Inwestycja ma przypominać zacumowane w porcie statki a kaskadowa kompozycja nadać osiedlu dynamiczności. Elewacja jest jasna, nowoczesna, przełamana dużymi przeszkleniami, dzięki którym każde mieszkanie jest dobrze doświetlone. Mieszkanie składa się z: - salonu z aneksem kuchennym 21,30 m2 - pokoju 10,23 m2 - pokoju 9,96 m2 - łazienki 5,43 m2 - toalety 3,08 m2 - przedpokoju 8,85 m2 Do mieszkania przynależy duży balkon o powierzchni 14,10 m2 Ekspozycja południowo-zachodnia LOKALIZACJA Osiedle powstaje tuż przy Odrze, na Starym Mieście. Wzdłuż rzeki rozciągać się będą tereny spacerowe, nieopodal Górka Szczepińska oraz pobliskie parki: Popowicki i Zachodni. W niedalekiej odległości zlokalizowane jest Centrum Handlowe Magnolia Park, Biedronka oraz liczne ośrodki biznesowe i biurowe, a także Hala Orbita oraz plaża miejska HotSpot Beach Bar. Inwestycja jest dobrze skomunikowana z resztą miasta, do centrum prowadzą liczne linie autobusowe oraz nowopowstała linia tramwajowa. Mieszkańcy mogą korzystać również z przystanku PKP Szczepin, zlokalizowanego tuż przy inwestycji, z którego dojechać można w 10 minut na Dworzec Główny, 3 minuty na dworzec Nadodrze i 10 minut na dworzec Psie Pole. KOMUNIKACJA - 400 m przystanek autobusowy - 400 m przystanek tramwajowy - 2,7 km do CH Magnolia Park - 30 minut spacerem do Rynku Istnieje możliwość dokupienia miejsca postojowego w garażu podziemnym oraz komórki lokatorskiej W ofercie również inne powierzchnie mieszkań Zapraszam do kontaktu / For more information please call us +48 889 759 863 Feel free to contact us, talk and see the apartment. For more information please call us +48 889 759 863. Por favor contáctenos para conocer más sobre la oferta y ver el apartamento. Podemos ayudar con todos los trámites. Para más información por favor llámanos +48 889 759 863. Treść niniejszego ogłoszenia nie stanowi oferty handlowej w rozumieniu Kodeksu Cywilnego. Oferta wysłana z programu IMO dla biur nieruchomości

Dodatkowe informacje

  • balkon
  • garaż
  • internet

Skontaktuj się

Home Partner Monika Łabęska - Cioch

Dodaj załącznik
Liczba odsłon: 98 | Numer: SPI_20406
Zgłoś nadużycie
999 000 zł 16969 zł/m²

Home Partner Monika Łabęska - Cioch

FIRMA

Na Sprzedajemy.pl od Paź 2014
Wrocław dolnośląskie Zobacz na mapie »

Home Partner Monika Łabęska - Cioch

FIRMA

Na Sprzedajemy.pl od Paź 2014
Wrocław dolnośląskie Zobacz na mapie »
Oferty firmy

Adres

Home Partner Monika Łabęska - Cioch
Miedziana 4 lok. 5
53-441 Wrocław
Zobacz na mapie
tel.: 536496163

Godziny otwarcia

  • Poniedziałek - Piątek09:00 - 17:00
  • Sobota - Niedzielanieczynne
  • O nas

  • Bezpieczenstwo

  • Pomoc

  • Poradnik kupującego

  • Mapa kategorii

  • Ogłoszenia archiwalne

  • Oferta dla firm

Copyright © 2011-2026 Sprzedajemy.pl Sp. z o.o. Korzystanie z serwisu oznacza akceptację regulaminu.

Zarządzaj powiadomieniami
Odblokuj powiadomienia