Mieszkanie 40,30m2 + działka - Wodzisław centrum
- 27 Gru 17:08
- Nr ogłoszenia: 72382142
1 / 3
- Oferta od osoby prywatnej
- Rynek wtórny
- Cena za m² 6452 zł/m²
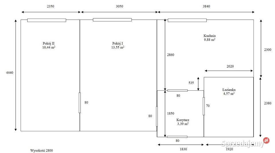
- Powierzchnia 40.3 m²
- Liczba pokoi 2
- Materiał budynku cegła
- Pokrycie dachu blacha
- Ogrzewanie olejowe
- Forma własności własność
- Piętro 1
- Liczba pięter 1 piętro
Mieszkanie znajduje się na piętrze Ośrodka Zdrowia w Wodzisławiu.
Co istotne - mieszkanie jest BEZCZYNSZOWE - koszt zamieszkiwania to jedynie media i ogrzewanie.
W ostateczności jak nie będzie chętnego mogę rozważyć wynajem, w mieszkaniu są meble kuchenne z podstawowym sprzętem (plyta, piekarnik), duża szafa, można wstawić swoje meble lub szybko wyposażyć w to co niezbędne do mieszkania. Jednak opcja sprzedaży na pierwszym miejscu.
Dwa pokoje, kuchnia, łazienka. Ścianki między pokojami i kuchnią działowe - można wyburzyć i zmienić układ.
Pełna własność z udziałem w gruncie.
Ośrodek kilka lat wstecz remontowany z wymianą dachu, pełnym ociepleniem ścian i stropu.
Nowe 3-szybowe okna.
Mieszkanie bardzo jasne - okna w kierunku zachodnim.
Dostępne od zaraz.
Do mieszkania przynależą:
- duża piwnica 11,2m2
- działka z tylu ośrodka o powierzchni 115m2 (można postawić garaż lub zagospodarować w dowolny sposób
Nad mieszkaniem duży strych, z którego można korzystać np. susząc pranie.
Ciepła woda z boilera elektrycznego. Ogrzewanie - CO na podstawie umowy z Ośrodkiem Zdrowia - zainstalowany licznik.
Dodatkowe informacje
- piwnica
- strych
- ogródek
- oddzielna kuchnia
260 000 zł
6452 zł/m²
do negocjacji
