Wszystko kupisz. Wszystko sprzedasz.
0
Zaloguj się
+ Dodaj ogłoszenie

Lokal Wieliczka 31m2

1 / 12
Obserwuj
  • Oferta od firmy
  • Powierzchnia 31 m²
  • Wejście od ulicy
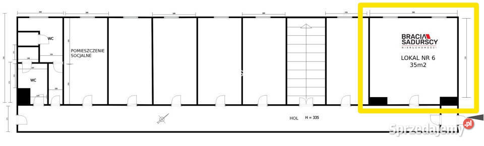
Lokal użytkowy o powierzchni 35m 2 do wynajęcia w Wieliczce. (nr6) Jeżeli poszukują Państwo przestrzeni dla siebie lub swojego biznesu w okolicy Wieliczki, to może być idealna propozycja: oferowany lokal idealnie sprawdzi się jako przestrzeń handlowa, usługowa, biurowa czy magazynowa, lokal jest uzbrojony w instalację elektryczną, w cenie 2065zł netto otrzymują Państwo jedno miejsce postojowe przy budynku, istnieje możliwość wynajęcia więcej niż jednego pomieszczenia, teren jest ogrodzony i strzeżony przez ochronę. Lokal mieści się w skrzydle biurowca w Wieliczce, prowadzi do niego droga wewnętrzna, teren jest ogrodzony. Do lokalu prowadzi hol, do dyspozycji najemcy udostępnione zostają pomieszczenia WC oraz wyposażony w sprzęty Pokój Socjalny. Cena 2065zł netto obejmuję czynsz najmu dla wykorzystania powierzchni jako magazynowa, w przypadku chęci innego przeznaczenia, serdecznie prosimy o kontakt. Dodatkowa opłaca za CO rozliczana ryczałem. Przystanek autobusowy (B2) dostępny 230 metrów od budynku, który mieści się w sąsiedztwie drogi krajowej nr 94. Serdecznie zachęcam do kontaktu oraz zapraszam na prezentację. Istnieje możliwość wynajęcia dodatkowych pomieszczeń! Łukasz Hołda tel: 577- 796- 778 lu***z@s*******.pl ::DODATKOWE INFORMACJE Nazwa obiektu: HERZ Rodzaj budynku: biurowiec Dozór budynku: tak - jest Gaz: brak Woda: jest Dojazd: droga utwardzona Otoczenie: zakład produkcyjny Ogrzewanie: C.O. lokalne Internet: TAK Komunikacja publ.: autobus Usytuowanie: jednostronne Sieć komputerowa: TAK Możliwość parkowania: tak Własny parking: TAK Opis miejsc parking.: Jedno miejsce parkingowe w cenie. Położenie lokalu: spokojna ulica Witryna wystawowa: brak Wejście: od ulicy Liczba wejść: 1 Podłogi: wykładzina Teren ogrodzony: TAK Min. okres naj. (mies.): 365 Stan lokalu: do adaptacji Okna: PCV Instalacje: dobre Powierzchnia użytkowa [m2]: 31 Rok budowy: 2003 Rodzaj lokalu: jednopoziomowy Przeznaczenie lokalu: usługowy, magazynowy, handlowy, handlowo-usługowy, biurowy, biurowo - magazynowy Pow. sali sprzedaży [m2]: 17 Liczba pokoi: 1 Wysokość pomieszczeń [m]: 3,3000 Liczba pomieszczeń socjalnych: 1 Powierzchnia pomieszczeń socjalnych [m2]: 17,2200 Uw. do pom. socjalnych: pomieszczenie współdzielone Liczba pomieszczeń sanitarnych: 2 Powierzchnia pomieszczeń sanitarnych [m2]: 17 Uw. do pom. sanitarnych: pomieszczenie współdzielone Typ kaucji: jednomiesięczna ::LINK DO STRONY http*********************************** ::KONTAKT DO AGENTA Łukasz Hołda +48 ***-***-*** lu***z@s*******.pl ::DANE BIURA Oddział BS4, Krowodrza Kołowa 5/3 30-134 Kraków 12 633-90-20

Przeznaczenie

  • handlowo-usługowy

Skontaktuj się

Bracia Sadurscy D. Sadurski sp.k.

Dodaj załącznik
Liczba odsłon: 1654 | Numer: SPI_BS4-LW-309789
Zgłoś nadużycie
2 065 zł

Bracia Sadurscy D. Sadurski sp.k.

Na Sprzedajemy.pl od Gru 2012
Wieliczka małopolskie Zobacz na mapie »

Bracia Sadurscy D. Sadurski sp.k.

Na Sprzedajemy.pl od Gru 2012
Wieliczka małopolskie Zobacz na mapie »
Oferty firmy

Adres

Bracia Sadurscy D. Sadurski sp.k.
Kapelanka 1a / 1
30347 Kraków
Zobacz na mapie
tel.: 123110188

Godziny otwarcia

teraz otwarte
  • Poniedziałek - Piątek09:00 - 18:00
  • Sobota - Niedzielanieczynne
  • O nas

  • Bezpieczenstwo

  • Pomoc

  • Poradnik kupującego

  • Mapa kategorii

  • Ogłoszenia archiwalne

  • Oferta dla firm

Copyright © 2011-2025 Sprzedajemy.pl Sp. z o.o. Korzystanie z serwisu oznacza akceptację regulaminu.

Zarządzaj powiadomieniami
Odblokuj powiadomienia