Wszystko kupisz. Wszystko sprzedasz.
0
Zaloguj się
+ Dodaj ogłoszenie

Działka budowlana Rakszawa 15,41 ar / uzbrojona / warunki zabudowy

1 / 4
Obserwuj
  • Oferta od firmy
  • Rynek wtórny
  • Cena za m² 110 zł/m²
  • Powierzchnia 1541 m²
  • Typ budowlana
  • Droga asfalt
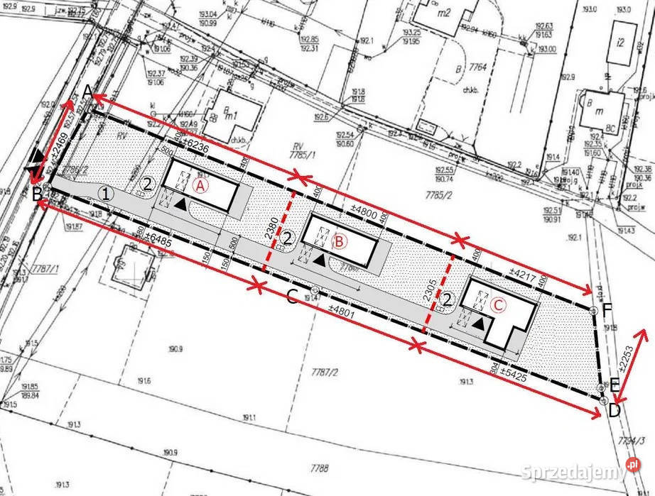
OGŁOSZENIE BEZPOŚREDNIE - BEZ PROWIZJI Na sprzedaż działka budowlana o nr 7786/3 z wydanymi warunkami zabudowy na budynek mieszkalny jednorodzinny. Działka została wydzielona z nieruchomości o nr 7786/1. BIUROM NIERUCHOMOŚCI DZIĘKUJĘ I PROSZĘ O USZANOWANIE MOJEGO I SWOJEGO CZASU Działka A (15.41ar) - 169 510 zł - gabaryty zabudowy budynku mieszkalnego: dwu lub wielospadowy o nachyleniu połaci 25-45°; wysokość górnej krawędzi elewacji frontowej 3-9,5m; wysokość kalenicy dachu do 9,5m; szerokość elewacji frontowej 10m +/- 20% Wjazd bezpośrednio z asfaltowej drogi gminnej. Do działek B i C przy sprzedaży zostanie ustalona służebność przesyłu mediów i służebność przejazdu drogą wewnętrzną o szerokości 5m przez działkę A. Działka B (11.25ar) - REZERWACJA - Dojazd drogą wewnętrzną przez działkę A. Działka C (10.96ar) - REZERWACJA - Dojazd drogą wewnętrzną przez działkę A i B. Media: - woda na działce A, - kanalizacja na działce A, - prąd na działce A, - gaz po sąsiedzku. Działka położona w spokojnej okolicy w sąsiedztwie domów jednorodzinnych. Pierwsza linia zabudowy, wjazd bezpośrednio ze świeżo odnowionej, oświetlonej drogi asfaltowej. Na działce wycięto wszystkie drzewa, sfrezowano pnie, a następnie całość została zmulczowana wgłębnie. Dogodna lokalizacja: - 8 km od Łańcuta - 27 km od Rzeszowa - 16,5 km od Jasionki - 4,4 km od wjazdu na autostradę Sprzedaż przez właściciela bez pośredników. Cena do negocjacji. Ogłoszenie dodane do wielu portali nieruchomości przez portal www.****************

Skontaktuj się

Odwlasciciela.pl - Dodaj Ogłoszenie do 100 portali

Dodaj załącznik
Liczba odsłon: 116 | Numer: SPI_38097
Zgłoś nadużycie
169 510 zł 110 zł/m²

Odwlasciciela.pl - Dodaj Ogłoszenie do 100 portali

FIRMA

Na Sprzedajemy.pl od Maj 2019
Rakszawa podkarpackie Zobacz na mapie »

Odwlasciciela.pl - Dodaj Ogłoszenie do 100 portali

FIRMA

Na Sprzedajemy.pl od Maj 2019
Rakszawa podkarpackie Zobacz na mapie »
Oferty firmy

Adres

Odwlasciciela.pl - Dodaj Ogłoszenie do 100 portali
odwlasciciela.pl - ogłaszanie nieruchomości
38-440 Iwonicz
Zobacz na mapie

Godziny otwarcia

teraz otwarte
  • Poniedziałek - Piątek09:00 - 17:00
  • Sobota - Niedzielanieczynne
  • O nas

  • Bezpieczenstwo

  • Pomoc

  • Poradnik kupującego

  • Mapa kategorii

  • Ogłoszenia archiwalne

  • Oferta dla firm

Copyright © 2011-2025 Sprzedajemy.pl Sp. z o.o. Korzystanie z serwisu oznacza akceptację regulaminu.

Zarządzaj powiadomieniami
Odblokuj powiadomienia