Wszystko kupisz. Wszystko sprzedasz.
0
Zaloguj się
+ Dodaj ogłoszenie

Dom szeregowy 107.6m2 Marki

1 / 8
Obserwuj
  • Oferta od firmy
  • Rynek pierwotny
  • Cena za m² 8819 zł/m²
  • Powierzchnia 107.6 m²
  • Powierzchnia działki 107 m²
  • Zabudowa szeregowa
  • Rok budowy 2025
  • Liczba pokoi 4
  • Materiał budynku pustak
  • Pokrycie dachu blacha
  • Typ mieszkalny
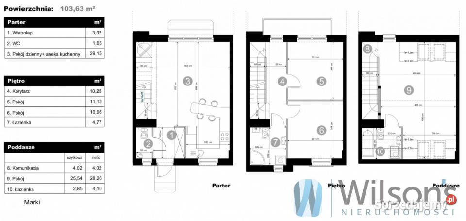
Oferta i zakup prosto od Dewelopera. Istnieje możliwość obejrzenia w tygodniu jak również w sobotę lub niedzielę po wcześniejszym umówieniu telefonicznym. Osiedle Nowoczesnych segmentów w super lokalizacji bliskich Marek. W okolicy sklepy typu Biedronka, Netto, Orlen. 5 min do szkoły. W segmencie wszędzie położone ogrzewanie podłogowe + dodatkowe wyprowadzenia do kaloryferów) Wyprowadzenia do zamontowania 2 klimatyzatorów. Dodatkowo na parterze możliwość zamontowania kominka (wstawiony komin) Segment 103,63 mkw (całkowita 107,60mkw )  składa się z 3 poziomów : Parter: - salon z aneksem - 29,15 mkw - wiatrołap              -  3,32 mkw - wc                        -  1,65 mkw Piętro: - pokój                    - 11,12 mkw - pokój                    - 10,96 mkw (z wyjściem na balkon) - korytarz                - 10,25 mkw - łazienka                -  4,77 mkw Poddasze: - pokój                     - 28,26 mkw ( 25,54 użytkowa) - łazienka                 -  4,10 mkw ( 2,85 użytkowa) - komunikacja          -  4,02 mkw Dodatkowo w cenie: - ogródek - miejsce postojowe  Lokal mieszkalny w budynku mieszkalnym powstaje w następującej technologii standardzie: 1. Konstrukcja budynku: technologia tradycyjna, murowana, stropy, schody i balkony o konstrukcji żelbetowej; budynki pokryte dachami dwuspadowymi, pokryte blachodachówką. 2. Fundament: płyta fundamentowa - żelbetowa. 3. Ściany zewnętrzne: główny materiał - pustaki ceramiczne (25 cm), wykończone w technologii lekkiej-mokrej z zastosowaniem styropianu grafitowego (15 cm), pomiędzy lokalami zdylatowane ściany z pustaków ceramicznych (18,8 cm). 4. Ściany wewnętrzne: konstrukcyjne z pustaków ceramicznych (25 cm), działowe z pustaków ceramicznych (8 cm). 5. Stropy, podciągi, wieńce i schody wewnętrzne: żelbetowe, monolityczne. 6. Dach: dwuspadowy o konstrukcji drewnianej, pokrycie dachu - blachodachówka, obróbki blacharskie z blachy powlekanej, rynny i rury spustowe PVC. 7. Schody zewnętrzne: kostki i galanteria betonowa. 8. Kominy: systemowe, prefabrykowane. 9. Podłogi: posadzka - wylewka betonowa zbrojona przeciwskurczowo, zatarta na gładko, balkony - posadzka betonowa pod płytki mrozoodporne antypoślizgowe. 10. Ściany i sufity - tynki gipsowe maszynowe. 11. Stolarka: okienna - PCV, z wbudowanymi nawiewnikami, okna trzyszybowe, co najmniej jedno skrzydło w pomieszczeniu rozwieralno-uchylne. 12. Drzwi wejściowe: klasy RC2. 13. Parapety: parapety zewnętrzne z blachy, bez parapetów wewnętrznych. 14. Barierki na balkonie. 15. Wyposażenie łazienek parter i piętro: zaślepione podejścia wodne pod urządzenia (bez białego montażu), zaślepione wyjście odpływu kanalizacyjnego, grzejnik łazienkowy. 16. Wyposażenie kuchni: zaślepione podejścia wodne pod wyposażenie: zlewozmywak, zmywarka, zaślepione wyjście z pionu kanalizacyjnego. 17. Doprowadzenie zasilenia dla potrzeb zmywarki, lodówki, kuchni elektrycznej, w tym doprowadzone do kuchni zasilanie trójfazowe. 18. Wyposażenie pomieszczeń na parterze i piętrze: instalacja elektryczna, instalacja c.o. pod ogrzewanie podłogowe oraz pod możliwość instalacji grzejników, w każdym pokoju, instalacja internetowa do wykorzystania jako antenowa. Wykonana instalacja alarmowa z możliwością podłączenia czujek ruchowych i centralki alarmowej. Możliwość instalacji kominka w salonie na parterze. 19. Poddasze: do dowolnej aranżacji przez Klienta wraz z wykonaniem przez Klienta ewentualnego ocieplenia, instalacja C.O. pod ogrzewanie podłogowe oraz pod możliwość instalacji grzejników, instalacja elektryczna i internetowa z możliwością wykorzystania jako antenowa. 20. Ogrzewanie podłogowe wodne wykonane zostanie w wiatrołapie, kuchni i łazienkach oraz pokojach i poddaszu. Ze względu ma ogrzewanie podłogowe mimo możliwości instalacji grzejników nie są one montowane w pokojach. Teren zewnętrzny: *  Zagospodarowanie terenu wokół budynków obejmuje: a. wykończenie dojścia i dojazdu do budynku zgodnie z projektem: b. pozostała część chłonna terenu: do zagospodarowania; c. brama wjazdowa na teren lokalizacji budynków  d. wykonanie ogrodzenia budynków *  Na terenie inwestycji zostaną wykonane zewnętrzne miejsca postojowe dla samochodów osobowych. * W budynku wykonane zostaną następujące instalacje: elektryczna, gazowa, wod.-kan. oraz c.o., c.w.u. oraz internetowa i alarmowa. Stan deweloperski - GOTOWY Oddanie do użytkowania - ODDANY ... ZAPRASZAMY DO BEZPIECZNEGO OGLĄDANIA DOMU. Pomożemy dopełnić wszelkich formalności przy zakupie mieszkania. Pomożemy od ręki w sprawach kredytu. Mieszkania te zwolnione są z opłaty podatku od czynności cywilno-prawnych PCC (oszczędność wynosi 2%).

Droga

  • utwardzona

Skontaktuj się

Wilsons Nieruchomości Sp. Z o.o

Dodaj załącznik
Liczba odsłon: 654 | Numer: SPI_WIL506005
Zgłoś nadużycie
949 000 zł 8819 zł/m²

Wilsons Nieruchomości Sp. Z o.o

Na Sprzedajemy.pl od Maj 2020
Marki mazowieckie Zobacz na mapie »

Wilsons Nieruchomości Sp. Z o.o

Na Sprzedajemy.pl od Maj 2020
Marki mazowieckie Zobacz na mapie »
Oferty firmy

Adres

Wilsons Nieruchomości Sp. Z o.o
Świętokrzyska 20 lok.311
00-002 Warszawa
Zobacz na mapie
tel.: 222012920

Godziny otwarcia

  • Poniedziałek - Piątek09:00 - 17:00
  • Sobota - Niedzielanieczynne
  • O nas

  • Bezpieczenstwo

  • Pomoc

  • Poradnik kupującego

  • Mapa kategorii

  • Ogłoszenia archiwalne

  • Oferta dla firm

Copyright © 2011-2025 Sprzedajemy.pl Sp. z o.o. Korzystanie z serwisu oznacza akceptację regulaminu.

Zarządzaj powiadomieniami
Odblokuj powiadomienia