Dom Lutoryż
- 05 Kwi 18:10
- Nr ogłoszenia: 72982386
1 / 12
- Oferta od osoby prywatnej
- Rynek pierwotny
- Cena za m² 5828 zł/m²
- Powierzchnia 153.57 m²
- Powierzchnia działki 824 m²
- Zabudowa wolnostojący
- Typ mieszkalny
Nowy dom 153,57 m² – Lutoryż k. Rzeszów | 8,24 a | Projekt ARCHON „Dom w Malinówkach 14 (GA)”
Na sprzedaż dom jednorodzinny realizowany według projektu **ARCHON+ Biuro Projektów** – „Dom w Malinówkach 14 (GA)”, położony w miejscowości Lutoryż (woj. podkarpackie). Spokojna okolica z szybkim dojazdem do Rzeszowa – idealne miejsce dla osób ceniących komfort i prywatność.
Podstawowe informacje:
* Powierzchnia domu: **153,57 m²**
* Powierzchnia działki: **8,24 ara (824 m²)**
* Garaż jednostanowiskowy w bryle budynku
* Sprzedaż na podstawie **faktury VAT** – kupujący zwolniony z podatku PCC
* Cena w ogłoszeniu dotyczy **stanu deweloperskiego zamkniętego**
* Możliwość zakupu w stanie surowym lub innym zakresie wykończenia – szczegóły telefonicznie
Technologia wykonania i standard
Dom budowany z solidnych materiałów, z dbałością o trwałość i energooszczędność:
* Fundament z bloczków betonowych – ocieplony i zabezpieczony folią kubełkową
* Ściany z betonu komórkowego (suporex) – murowane metodą klejenia
* Monolityczny strop żelbetowy
* Kominy systemowe
* Dach pokryty blachodachówką **Dunia** w kolorze antracyt, pełne orynnowanie oraz podbitka
* **Nowoczesna elewacja z elementami dekoracyjnymi**, podkreślająca współczesny charakter budynku
Stan deweloperski zamknięty obejmuje:
* Okna PVC 3-szybowe (kolor antracyt)
* Drzwi wejściowe
* Bramę garażową
* Tynki gipsowe wewnętrzne
* Wylewki wraz z izolacją i ociepleniem
* Instalację hydrauliczną (wod-kan)
* Instalację elektryczną
* Instalacja gazowa
* Ogrzewanie podłogowe w całym domu
* Ocieplenie poddasza metodą lekką
Funkcjonalny i nowoczesny projekt
Projekt „Dom w Malinówkach 14 (GA)” oferuje:
* przestronny salon z jadalnią i wyjściem na taras
* otwartą kuchnię
* dodatkowy pokój na parterze (gabinet / sypialnia)
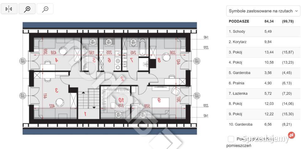
* 3 komfortowe sypialnie na poddaszu
* 2 łazienki
* kotłownię
* garaż
Nowoczesna bryła, antracytowa stolarka oraz dopracowana elewacja tworzą spójną i elegancką całość.
---
Lokalizacja
Lutoryż – kameralna miejscowość w sąsiedztwie Rzeszowa.
Szybki dojazd do miasta, zabudowa jednorodzinna oraz spokojne otoczenie sprzyjające życiu rodzinnemu.
---
**Cena dotyczy stanu deweloperskiego zamkniętego**
W celu uzyskania informacji o cenie w innym standardzie wykończenia – zapraszam do kontaktu.
* Planowane zakończenie realizacji I kwartał 2027
895 000 zł
5828 zł/m²
do negocjacji
