Wszystko kupisz. Wszystko sprzedasz.
0
Zaloguj się
+ Dodaj ogłoszenie Dla firm

Dom bliźniak Halinów Północna 144.28m2

1 / 12
Obserwuj
  • Oferta od firmy
  • Rynek pierwotny
  • Cena za m² 6757 zł/m²
  • Powierzchnia 144.28 m²
  • Powierzchnia działki 388 m²
  • Zabudowa bliźniak
  • Liczba pięter 3 piętra i więcej
  • Rok budowy 2025
  • Liczba pokoi 5
  • Materiał budynku inne
  • Pokrycie dachu blacha
  • Typ mieszkalny
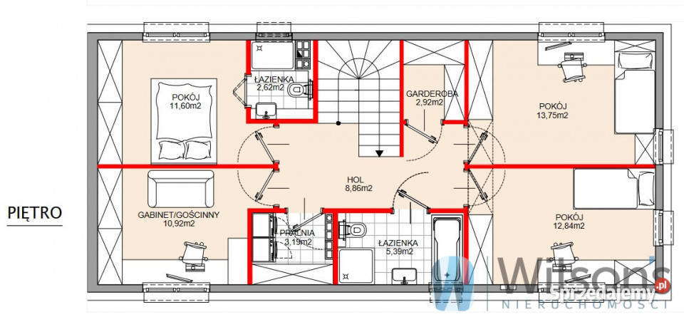
Prezentujemy połówkę bliźniaka o powierzchni 144 m2 w stanie deweloperskim na działce 388 m2. Dostępne są również segmenty o mniejszej powierzchni i na mniejszych działkach. Lokalizacja: Miejscowość Krzewina zaledwie 10 min autem od stacji SKM Sulejówek Miłosna i tylko 5 min od stacji KM Halinów lub Cisie. Dojazd asfaltem, Oferta bez prowizji i PCC! Ten bliźniak jest częścią "Osiedla Krzewina" położonego pod Warszawą, pośród mazowieckich łąk w cichej okolicy. Osiedle będzie ogrodzone, z własnym placem zabaw i siłownią plenerową. Do każdego lokalu przynależy ogródek do wyłącznego korzystania, garaż w bryle budynku oraz miejsce parkingowe przed budynkiem. Budynek usytuowany jest tak, że okna salonu wychodzą na południe a kuchni na północ. Imponująco duże przeszklenia zapewniają dobre doświetlenie pomieszczeń i widok na otaczającą przyrodę. Wygodny rozkład pomieszczeń spełni oczekiwania wymagających Klientów: obszerny salon, kuchnia z wyspą, spiżarnia, 4 sypialnie, pralnia oraz 3 łazienki! Każdy lokal będzie ogrzewany piecem gazowym (ujęcie gazu z sieci). Powierzchnie pomieszczeń: PARTER 72,19 m2: wiatrołap 2,98 m2 korytarz 5,40 m2 toaleta 1,67 m2 salon 28,82 m2 kuchnia 7,63 m2 spiżarnia 2,44 m2 kotłownia 2,61 m2 schody 4,54 m2 garaż 16,10 m2 PIĘTRO 72,09 m2: korytarz 8,86 m2 pokój 13,75 m2 pokój 12,84 m2 pokój 11,60 m2  pokój 10,92 m2 łazienka 5,39 m2  łazienka 2,62 m2 pralnia 3,19 m2 garderoba 2,92 m2 Skontaktuj się ze mną, aby umówić prezentację. Oferuję wsparcie na każdym etapie transakcji oraz pomoc w zdobyciu kredytu hipotecznego.

Droga

  • asfalt

Ogrodzenie

  • siatka

Skontaktuj się

Wilsons Nieruchomości Sp. Z o.o

Dodaj załącznik
Liczba odsłon: 4120 | Numer: SPI_WIL896474
Zgłoś nadużycie
975 000 zł 6757 zł/m²

Wilsons Nieruchomości Sp. Z o.o

Na Sprzedajemy.pl od Maj 2020
Halinów mazowieckie Zobacz na mapie »

Wilsons Nieruchomości Sp. Z o.o

Na Sprzedajemy.pl od Maj 2020
Halinów mazowieckie Zobacz na mapie »
Oferty firmy

Adres

Wilsons Nieruchomości Sp. Z o.o
Świętokrzyska 20 lok.311
00-002 Warszawa
Zobacz na mapie
tel.: 222012920

Godziny otwarcia

  • Poniedziałek - Piątek09:00 - 17:00
  • Sobota - Niedzielanieczynne
  • O nas

  • Bezpieczenstwo

  • Pomoc

  • Poradnik kupującego

  • Mapa kategorii

  • Ogłoszenia archiwalne

  • Oferta dla firm

Copyright © 2011-2026 Sprzedajemy.pl Sp. z o.o. Korzystanie z serwisu oznacza akceptację regulaminu.

Zarządzaj powiadomieniami
Odblokuj powiadomienia