Wszystko kupisz. Wszystko sprzedasz.
0
Zaloguj się
+ Dodaj ogłoszenie

Do sprzedaży dom wolnostojący Rączna 214 metry

1 / 12
Obserwuj
  • Oferta od firmy
  • Rynek wtórny
  • Cena za m² 7850 zł/m²
  • Powierzchnia 214 m²
  • Powierzchnia działki 1900 m²
  • Zabudowa wolnostojący
  • Liczba pięter 2 piętra
  • Stan do zamieszkania
  • Rok budowy 2000
  • Liczba pokoi 6
  • Materiał budynku pustak
  • Typ mieszkalny
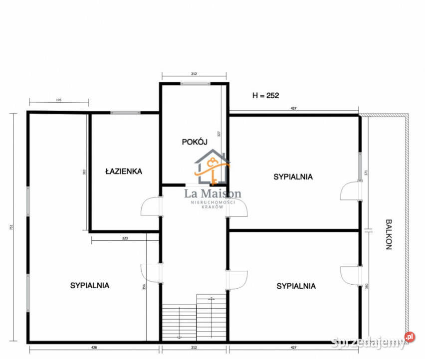
Twój dom z widokiem na góry - przestrzeń, spokój i komfort. Marzysz o własnym domu z ogrodem, z dala od zgiełku, a jednocześnie szybkim dojazdem do Krakowa? Ten przestronny dom w Rącznej spełni Twoje oczekiwania. To idealne miejsce dla rodziny, która ceni przestrzeń, spokój i jakość życia. Najważniejsze informacje: • Lokalizacja: Rączna, gmina Liszki, powiat krakowski • Powierzchnia domu: całkowita ok. 214 m² (użytkowa 134.7 m²) • Działka: 19 arów, płaska, zadbana, z pięknie zagospodarowanym ogrodem • Rok budowy: 2000 • Typ domu: wolnostojący, parterowy, z poddaszem użytkowym, w pełni wykończony i umeblowany Dom gotowy do zamieszkania. Układ domu: • Parter: przestronna kuchnia z pełnym wyposażeniem, duży salon z wyjściem na taras, sypialnia, łazienka z wanną narożną i WC, garderoba, pomieszczenie gospodarcze (kotłownia), korytarz z klatką schodową. • Piętro: 3 sypialnie (dwie z balkonem, jedna z garderobą), pokój, łazienka z prysznicem i WC, • dostęp do strychu przez schody opuszczane. Wykończenie i wyposażenie: • Materiały najwyższej jakości: pustak ceramiczny MAX, dodatkowo ocieplony 10 cm warstwą styropianu (i jeszcze połową pustaka od zewnątrz), co zapewnia doskonałą izolację termiczną; • Dachówka ceramiczna; • Stolarka drewniana - solidna, o wysokiej jakości wykonania • Podłogi: parkiet w pokojach, ceramika w kuchni i łazienkach • Ogrzewanie: CO gazowe, piec dwufunkcyjny + bojler 150 l Nowoczesne udogodnienia: • Fotowoltaika o dużej wydajności - pozwala nie tylko zasilać dom w energię, ale także ogrzewać go dzięki zapasom prądu; • Ogrzewanie gazowe - piec dwufunkcyjny + bojler 150 l; • System alarmowy , garaż wolnostojący z pomieszczeniem gospodarczym; • Brak kanalizacji - przydomowa oczyszczalnia ścieków , ekonomiczna i bezobsługowa. Dodatkowy atut: Wielkość działki pozwala na budowę drugiego domu (dojazd do ewentualnej drugiej nieruchomości drogą o szerokości 5 metrów, co daje realną możliwość podziału terenu i realizacji kolejnej inwestycji). Okolica: • Cicha i spokojna część Rącznej • Blisko szkoła, przedszkole, kościół, sklepy • Dogodne połączenia komunikacyjne (MPK i BUS do centrum Krakowa) • Szybki dojazd do autostradowej obwodnicy Krakowa To idealna propozycja dla rodzin z dziećmi, które szukają komfortowego domu z ogrodem, oraz dla osób młodych, które chcą cieszyć się spokojem poza miastem, nie rezygnując z wygodnego dojazdu do Krakowa. W pogodny dzień widok na Babią Górę. Zapraszam do kontaktu. Magdalena Kempkowska La Maison Nieruchomości Tel. ***-***-*** e-mail: ma**a@l***********.pl ::DODATKOWE INFORMACJE Kategoria oferty: Pewny Partner Prąd: jest Gaz: jest Woda: tak - miejska Dojazd: asfalt Otoczenie: zabudowa jednorodzinna Ogrzewanie: C.O. GAZOWE Kanalizacja: własna oczyszczalnia Komunikacja publ.: bus, autobus podmiejski Drzwi antywłamaniowe: TAK Teren ogrodzony: TAK Okna: DREWNIANE NOWY TYP Instalacje: dobre Balkon: jest Liczba balkonów: 1 Tarasy: taras duży Liczba tarasów: 1 Zagosp. działki: zagospodarowana Ukształtowanie działki: płaska Kształt działki: prostokąt Rodzaj domu: wolnostojący Stan wybudowania: Pod klucz Typ elewacji: tynk zwykły Podst. materiał budowlany: pustak max Pokrycie dachu: dachówka ceramiczna Powierzchnia użytkowa [m2]: 134,7000 Stan budynku: do zamieszkania Podpiwniczenie: nie Garaż: wolnostojący Ogrodzenie działki: mieszane Rok budowy: 2000 Liczba pokoi: 6 Liczba sypialni: 4 Podłogi pokoi: parkiet Ściany pokoi: malowane Typ kuchni: jasna z oknem Rodzaj kuchni: z tradycyjną zabudową kuchenną Podłoga kuchni: płytki Typ łazienki: razem z wc Liczba łazienek: 2 Glazura łazienki: nowego typu Podłoga łazienki: płytki Wyposażenie łazienki: WC, wanna, kabina prysznicowa Ściany łazienki: glazura Liczba przedpokoi: 1 Podłoga przedpokoi: parkiet ::LINK DO STRONY http********************************************************************************** ::KONTAKT DO AGENTA Magdalena Kempkowska +48 *** *** *** +48 *** *** *** ma**a@l***********.pl ::DANE BIURA La Maison Nieruchomości ul. Kołowa 5/3 30-134 Kraków +48 ********* Pośrednik odpowiedzialny zawodowo za wykonanie umowy pośrednictwa: Magdalena Kempkowska (licencja nr: 11849)

Droga

  • asfalt

Ogrodzenie

  • inne

Skontaktuj się

Bracia Sadurscy D. Sadurski sp.k.

Dodaj załącznik
Liczba odsłon: 888 | Numer: SPI_LMN-DS-312547
Zgłoś nadużycie
1 680 000 zł 7850 zł/m²

Bracia Sadurscy D. Sadurski sp.k.

Na Sprzedajemy.pl od Gru 2012
Rączna małopolskie Zobacz na mapie »

Bracia Sadurscy D. Sadurski sp.k.

Na Sprzedajemy.pl od Gru 2012
Rączna małopolskie Zobacz na mapie »
Oferty firmy

Adres

Bracia Sadurscy D. Sadurski sp.k.
Kapelanka 1a / 1
30347 Kraków
Zobacz na mapie
tel.: 123110188

Godziny otwarcia

  • Poniedziałek - Piątek09:00 - 18:00
  • Sobota - Niedzielanieczynne
  • O nas

  • Bezpieczenstwo

  • Pomoc

  • Poradnik kupującego

  • Mapa kategorii

  • Ogłoszenia archiwalne

  • Oferta dla firm

Copyright © 2011-2026 Sprzedajemy.pl Sp. z o.o. Korzystanie z serwisu oznacza akceptację regulaminu.

Zarządzaj powiadomieniami
Odblokuj powiadomienia