Bliźniak Banino
- 06 Lis 11:02
- Nr ogłoszenia: 15813232
1 / 4
- Oferta od firmy
- Rynek pierwotny
- Cena za m² 2441 zł/m²
- Powierzchnia 170 m²
- Powierzchnia działki 450 m²
- Zabudowa bliźniak
- Liczba pięter parterowy
- Stan do wykończenia
- Rok budowy 2014
- Ogrzewanie gazowe
- Liczba pokoi 6
- Materiał budynku silikat
- Pokrycie dachu dachówka
- Typ mieszkalny
Zapraszam do zapoznania się z jedyną tego typu ofertą domu w zabudowie bliźniaczej w Baninie.
Dom jest realizowany w oparciu o nowoczesny projekt o nazwie „Julia” z pracowni Archon. Projekt został lekko zmieniony, dodano pokój na dolnej kondygnacji. Na uwagę zasługuje fakt, że na poddaszu, w żadnym z pomieszczeń nie ma skosów !
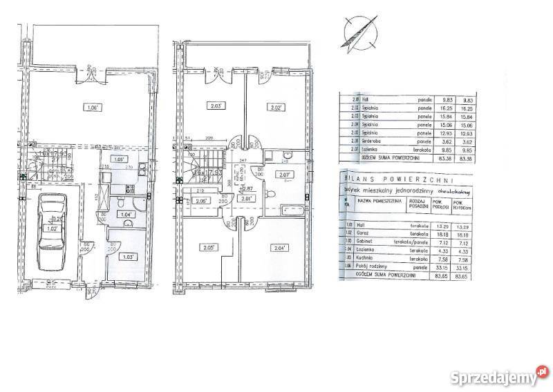
Powierzchnia użytkowa domu wynosi 167, 03 m2, składa się na nią parter o łącznej powierzchni 83,38 m2 oraz poddasze – 83,65 m2.
Na dolnej kondygnacji, wg projektu znajduje się salon ( 33,15 m2 ), kuchnia ( 7,58 m2 ), hall (13,29 m2 ), łazienka ( 4,33 m2 ), gabinet/pokój ( 7,12 m2 ) oraz garaż ( 18,18m2 ). Poddasze, to przestrzenne cztery pokoje ( 16,25 m2; 15,84m2; 15,06 m2; 12,93 m2 ), garderoba (3,62 m2), łazienka ( 9,85 m2 ) i hall (9,83 m2).
Co ważne, do wykorzystania jest jeszcze stryszek, który jeśli byłaby taka potrzeba mógłby zostać zaadaptowany na cele mieszkaniowe. W standardzie deweloperskim będzie oddany jako cześć nieużytkowa.
Dom jest funkcjonalny, pokoje są ustawne i jasne. Taki układ pomieszczeń optymalnie wykorzystuje przestrzeń. W cenie jest piec gazowy, grzejniki, ogrzewanie podłogowe rozprowadzone w części kuchennej, hallu i w łazienkach.
Chodniki, taras, miejsca postojowe wykonane są z kostki brukowej. Działka wokół budynku jest w całości zagospodarowana i ogrodzona (prócz frontu). Podłączona jest KANALIZACJA.
W bliskim sąsiedztwie znajdują się sklepy (Biedronka, piekarnia), szkoła podstawowa, przedszkola, przychodnia lekarska, apteka, bank, poczta oraz place zabaw dla dzieci.
Dojazd do Gdańska - Wrzeszcza autobusem miejskim linii 126, w niedalekiej przyszłości koleją metropolitalną.
Zachęcam do wizyty na budowie.
Droga
- utwardzona
Ogrodzenie
- siatka
Dodatkowe informacje
- balkon
- garaż
- ogródek
415 000 zł
2441 zł/m²
