Wszystko kupisz. Wszystko sprzedasz.
0
Zaloguj się
+ Dodaj ogłoszenie

Apartament NOWA FREGATA przy Solankach

1 / 7
Obserwuj
  • Oferta od firmy
  • Rynek pierwotny
  • Cena za m² 14663 zł/m²
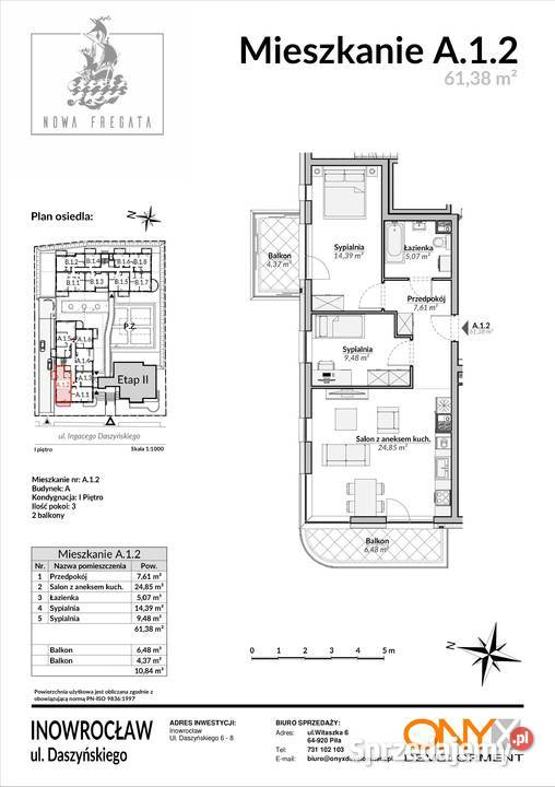
  • Powierzchnia 61.38 m²
  • Zabudowa apartamentowiec
  • Liczba pokoi 3
  • Ogrzewanie sieć
  • Piętro 1
  • Liczba pięter 3 piętra i więcej
Budynek zlokalizowany będzie w Inowrocławiu przy ulicy Daszyńskiego 6-8 na terenie byłego sanatorium "Fregata". W lipcu 2020 zakończyły się prace rozbiórkowe jednego z budynków pochodzącego z lat 60-tych. Rozpoczęcie prac budowlanych planowane jest na sierpień 2024 roku, a zakończenie na lipiec 2026. 56 apartamentów i mieszkań 56 apartamentów zaprojektowanych na 3 kondygnacjach budynków A, B i C. Budynki A i B realizowane będą w I etapie inwestycji. Apartamenty dostosowane do potrzeb od 1 do 4-pokoi, na powierzchniach od 25 do 83 m2, z opcją modyfikacji powierzchni. 56 miejsc postojowych W podziemnej hali garażowej, dedykowanych dla każdego z apartamentów. Komórki lokatorskie Na kondygnacji podziemnej zaprojektowano 11 komórek lokatorskich, o różnych powierzchniach dla osób potrzebujących dodatkowej przestrzeni. Komfort mieszkańców Komunikacja pionowa w budynku, oprócz tradycyjnych schodów, odbywać się będzie za pomocą windy wewnętrznej. Będzie ona obsługiwała kondygnacje od 1 do 3. Ogrzewanie miejskie W standardzie wykończenia znajdą się m.in. grzejniki w pokojach oraz ogrzewanie podłogowe w łazienkach (zgodnie z projektem). Na etapie budowy istnieje możliwość zmiany sposobu ogrzewania mieszkania z grzejników tradycyjnych na ogrzewanie podłogowe lub mieszane. Solidność Ściany konstrukcyjne budynku wykonane zostaną z elementów żelbetowych oraz paroprzepuszczalnych pustaków ceramicznych (Porotherm), które dobrze akumulują ciepło i powoli oddają je otoczeniu, dzięki czemu w naturalny sposób pomagają utrzymać w mieszkaniach optymalną temperaturę zarówno zimą, jak i latem. Budynek ocieplony będzie wełną mineralną oraz wyposażony w okna trzyszybowe o dużej powierzchni naświetlania. Tarasy, balkony, loggie oraz portfenetry zabezpieczone zostaną barierkami metalowymi bądź szklanymi, zgodnymi z wizualizacją. Jakość Premium Budynek został zaprojektowany w oparciu o ponadstandardowe rozwiązania. Wszystkie mieszkania i apartamenty wyposażone będą w instalację pod montaż klimatyzacji, rolety zewnętrzne (elektryczne), wysokiej klasy wideodomofony. Na częściach wspólnych będzie możliwość skorzystania z wi-fi, a energia elektryczna dostarczona zostanie z paneli fotowoltaicznych ulokowanych na dachu. Relaks na dziedzińcu Układ 3 budynków pozwolił na zaprojektowanie wewnętrznego dziedzińca, który zostanie zagospodarowany zielenią, ławeczkami i klimatycznym oświetleniem. Wraz z sąsiadującymi ogródkami należącymi do mieszkań na parterze, będzie stanowił przyjazną strefę służącą wypoczynkowi mieszkańców nieruchomości. Blisko natury Inwestycja wkomponowana będzie w otoczenie istniejącego Parku Solankowego z wysokim drzewostanem, sąsiadującej okazałej roślinności i urokliwą aleją dębową na ulicy Daszyńskiego. Przestrzeń pomiędzy budynkami zostanie maksymalnie wypełniona terenem zielonym z trawnikami i krzewami. Dodatkowo na terenie inwestycji zostanie posadzonych około 25 drzew, które wraz z zielonymi dachami na budynku A i B, idealnie podkreślą uzdrowiskowy charakter okolicy. Cena Ceny apartamentów zróżnicowano w zależności od kondygnacji, powierzchni i położenia. Nowa Fregata znajduje się w strefie B kompleksu uzdrowiskowego Inowrocławia („Solanki”), noszącego pierwotnie nazwę „Inowrocław Zdrój”, który obejmuje park Solankowy o powierzchni 85 ha oraz tzw. dzielnicę uzdrowiskową, gdzie zlokalizowane są sanatoria, hotele i wille wypoczynkowe. Zielona oaza Solanek to wszechogarniające drzewostany wielu gatunków drzew, w które w okresie letnim wkomponowane są kolorowe dywany kwiatowe. W parku można skorzystać z pijalni wód, gdzie serwowane są miejscowe wody mineralne, oddać się spacerom, uprawianiu Nordic Walking, jeździe na rowerze i rolkach. Dopełnieniem są relaksujące strefy pełne kwiatów, jak Ogrody Zapachowe i Papieskie. Obszar ten to prawdziwe płuca Inowrocławia, z których dobrodziejstw kuracjusze korzystali już od lat 70-tych XIX. W 2016 roku Światowa Organizacja Zdrowia (WHO) wykazała, że Inowrocław jest miastem o najczystszym powietrzu w Polsce. Tężnie Sercem Parku Solankowego są prozdrowotne tężnie solankowe. Mikroklimat, który wytwarza się dzięki tężni, zbliżony jest do klimatu nadmorskiego, służy profilaktyce i wspomaga leczenie schorzeń górnych dróg oddechowych, chorób tarczycy, schorzeń alergicznych skóry, obniża poziom ciśnienia tętniczego. Inowrocławska tężnia wyróżnia się oryginalnością konstrukcji (ma kształt dwóch połączonych ze sobą wieloboków), mierzy 9 metrów wysokości i ponad 300 metrów długości. Tężnie Solankowe w Inowrocławiu zostały uznane za jeden z 7 Nowych Cudów Polski 2014 ogłoszonych przez National Geographic. Co ciekawe archeolodzy odkryli, że już w okresie rzymskim (II-IV wiek) na terenie obecnego Inowrocławia zastosowano budowle przypominające współczesne tężnie, co czyni je najstarszymi tężniami solankowymi w Europie, a być może nawet w świecie. Zapraszamy do kontaktu z naszym Biurem Sprzedaży! *** Zakup bezpośrednio od dewelopera *** Kupujący nie płaci prowizji i podatku PCC *** Pomagamy w uzyskaniu kredytu hipotecznego http***********************

Dodatkowe informacje

  • balkon
  • garaż
  • winda
  • piwnica
  • internet
  • pom. użytkowe

Skontaktuj się

ONYX HOLDING SP. Z O.O.

Dodaj załącznik
Liczba odsłon: 140
Zgłoś nadużycie
900 044 zł 14663 zł/m²

ONYX HOLDING SP. Z O.O.

Na Sprzedajemy.pl od Cze 2025
Inowrocław kujawsko-pomorskie Zobacz na mapie »

ONYX HOLDING SP. Z O.O.

Na Sprzedajemy.pl od Cze 2025
Inowrocław kujawsko-pomorskie Zobacz na mapie »
Oferty firmy

Adres

ONYX HOLDING SP. Z O.O.
WITASZKA 6
64-920 Piła
Zobacz na mapie
tel.: 535798921
  • O nas

  • Bezpieczenstwo

  • Pomoc

  • Poradnik kupującego

  • Mapa kategorii

  • Ogłoszenia archiwalne

  • Oferta dla firm

Copyright © 2011-2025 Sprzedajemy.pl Sp. z o.o. Korzystanie z serwisu oznacza akceptację regulaminu.

Zarządzaj powiadomieniami
Odblokuj powiadomienia