32 mieszkania czekają na budowę
- 22 Sty 01:36
- Nr ogłoszenia: 72378615
PARTNER PREMIUM
1 / 12
- Oferta od firmy
- Rynek wtórny
- Szerokość 0 m
- Długość 0 m
- Typ inwestycyjna
- Droga asfalt
IZABELA POŁATYŃSKA-JANIK
Agent prowadzący
501 345 068
Super okazja dla dewelopera Cieszyn, ul. Władysława Reymonta
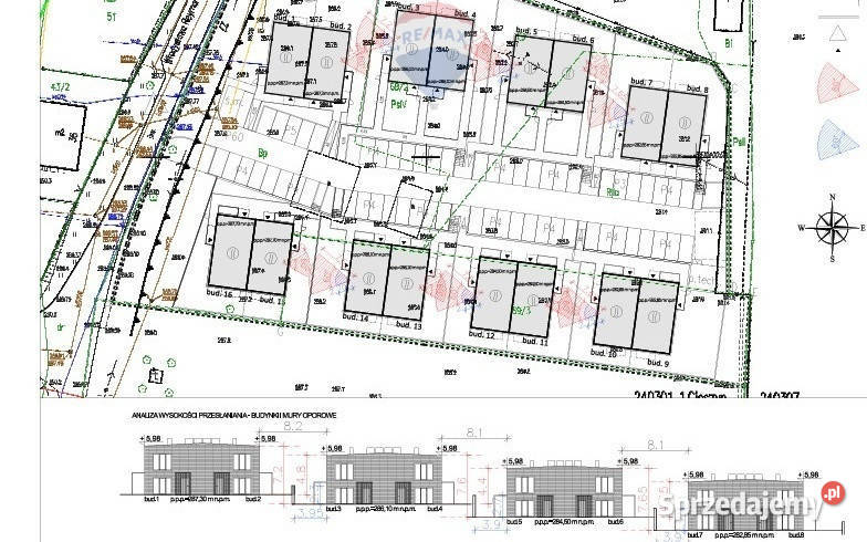
Na sprzedaż działki inwestycyjne nr 68/2 i 69/3 o łącznej powierzchni 7058 m2, z kompletną dokumentacją i decyzją pozwolenia na budowę 16 budynków jednorodzinnych dwulokalowych w zabudowie bliźniaczej łącznie 32 mieszkania.
Najważniejsze atuty:
Pełna dokumentacja pod inwestycję opinia geotechniczna, uzgodnienia z ZGK, Tauronem, gazownią.
Uzyskane pozwolenie na drugi zjazd z drogi publicznej.
Grunt częściowo wyłączony z produkcji rolnej.
Wszystkie media w sąsiedztwie (woda, prąd na działce).
Księga wieczysta wolna od obciążeń, sprzedaż prywatna bez VAT.
Parametry inwestycji:
Powierzchnia zabudowy: 1484,9 m²
Powierzchnia całkowita: 3053,42 m²
PUM: 2217,12 m²
Powierzchnie mieszkań w projektach: 54,59 m², 66,75 m², 73,30 m², 84,78 m²
Lokalizacja:
Rejon zabudowy jednorodzinnej, spokojna i zielona okolica.
W pobliżu tereny rekreacyjne Puńcówka, Lasek Miejski nad Olzą, ścieżki rowerowe.
Zameczek w Błogocicach w zasięgu spaceru.
700 m do granicy z Czechami atrakcyjny rynek najmu i sprzedaży.
Dobry dojazd asfaltowa droga gminna.
________________________________________
To świetna propozycja dla dewelopera kompletna dokumentacja, decyzja pozwolenia na budowę i bardzo dobra lokalizacja w rozwijającym się rejonie Cieszyna.
Skontaktuj się, aby uzyskać szczegóły i pełną dokumentację.
Oferta bez prowizji dla kupującego.
Koszty pośrednictwa pokrywa właściciel.
Oferujemy także bezpłatne wsparcie w uzyskaniu kredytu hipotecznego.
RE/MAX Invest
ul. Wyzwolenia 1
43-300 Bielsko-Biała
** *** ** **
Informacja przekazywana przez agenta / właściciela biura uważana jest za dokładną i rzetelną, ale nie jest gwarantowana i powinna być niezależnie sprawdzona.
W przypadku tej oferty wynagrodzenie naszego biura pokrywa właściciel nieruchomości.
Opis oferty zawarty na stronie internetowej sporządzany jest na podstawie oględzin nieruchomości oraz informacji uzyskanych od właściciela, może podlegać aktualizacji i nie stanowi oferty określonej w art. 66 i następnych K.C.
1 950 000 zł
