Wszystko kupisz. Wszystko sprzedasz.
0
Zaloguj się
+ Dodaj ogłoszenie Dla firm

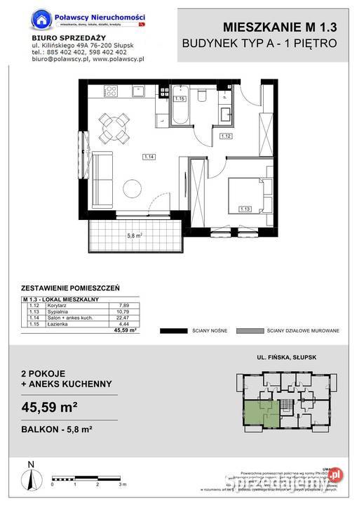
2 pokojowe z dużym balkonem 45,59 m2 Słupsk ul. Fińska

1 / 6
Obserwuj
  • Oferta od firmy
  • Rynek pierwotny
  • Cena za m² 6900 zł/m²
  • Powierzchnia 45.59 m²
  • Zabudowa dom wolnostojący
  • Liczba pokoi 2
  • Pokrycie dachu dachówka
  • Ogrzewanie gazowe
  • Rok budowy 2026
  • Forma własności własność
  • Piętro 1
  • Liczba pięter 1 piętro
OGRZEWANIE PODŁOGOWE PLUS MIEJSCE POSTOJOWE GRATIS! PRZEDSTAWIAMY NOWĄ INWESTYCJĘ OSIEDLE SANTORINI W SŁUPSKU BUDYNKI TYP A MIESZKANIA Z BALKONAMI, OGRODAMI I MIEJSCAMI POSTOJOWYMI ZAPRASZAMY DO REZERWACJI Osiedle SANTORINI to budynki o nowoczesnej bryle, które zostały zaprojektowane w myśl najnowszych trendów w architekturze. To projekty domów jednopiętrowych, które powstawać będą w Słupsku przy ulicy Fińskiej, w okolicy niskiej zabudowy jednorodzinnej i wielorodzinnej. Inwestycja obejmuje 12 budynków wielorodzinnych ośmiolokalowych, łącznie 96 mieszkań. W gamie oferowanych lokali znajdują się mieszkania 1, 2 i 3 pokojowe, o powierzchni od 35,96 m2 do 53,70 m2 z balkonami lub ogrodami i miejscami postojowymi zewnętrznymi. Układ pomieszczeń sprawia, że lokale są niezwykle funkcjonalne i dają duży komfort życia. Budynki będą całkowicie wykończone z zewnątrz, drogi wewnętrzne z polbruku. Domy oddawane w standardzie deweloperskim: tynki gipsowe, stolarka okienna PCW trzyszybowa, instalacja elektryczna i wodno-kanalizacyjna. Ciepła woda i ogrzewanie z kotłowni gazowej. Atutem inwestycji jest cena i lokalizacja - to idealne miejsce dla osób pragnących mieć stały dostęp do centrum i pełnej infrastruktury, a jednocześnie uwolnić się od zgiełku i hałasu ruchliwego miasta. Na osiedlu zaplanowany został plac zabaw. Kupujący nie ponoszą kosztów obsługi prawno-handlowej biura sprzedaży. Nieodpłatnie pomagamy również w uzyskaniu kredytu oraz na preferencyjnych warunkach w sprzedaży dotychczasowej nieruchomości. SZCZEGÓŁOWE INFORMACJE - tel. kontaktowy: *********, 601232900, 603687068 lub w BIURZE SPRZEDAŻY DEWELOPERA w Słupsku przy ul. Kilińskiego 49A BEZPŁATNA POMOC KREDYTOWA! - 885403403 Treść ogłoszenia ma charakter informacyjny i nie stanowi oferty w rozumieniu przepisów Kodeksu Cywilnego.

Dodatkowe informacje

  • balkon
  • miejsce parkingowe
  • internet
  • pom. użytkowe

Skontaktuj się

Poławscy Nieruchomości

Dodaj załącznik
Liczba odsłon: 612
Zgłoś nadużycie
314 571 zł 6900 zł/m²

Poławscy Nieruchomości

FIRMA

Na Sprzedajemy.pl od Kwi 2015
Słupsk pomorskie Zobacz na mapie »

Poławscy Nieruchomości

FIRMA

Na Sprzedajemy.pl od Kwi 2015
Słupsk pomorskie Zobacz na mapie »
Oferty firmy

Adres

Poławscy Nieruchomości
Kilińskiego 49A
76-200 Słupsk
Zobacz na mapie
tel.: 885402402
  • O nas

  • Bezpieczenstwo

  • Pomoc

  • Poradnik kupującego

  • Mapa kategorii

  • Ogłoszenia archiwalne

  • Oferta dla firm

Copyright © 2011-2026 Sprzedajemy.pl Sp. z o.o. Korzystanie z serwisu oznacza akceptację regulaminu.

Zarządzaj powiadomieniami
Odblokuj powiadomienia