-
PARTNER PREMIUM
Obserwuj
-
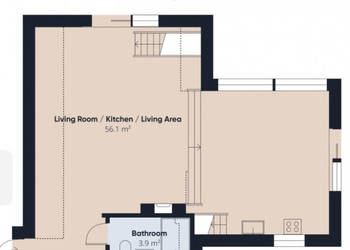
Nowoczesny dom w Polanowie - Jezioro Powidzkie
…(ok. 500 m – 1 km). Idealna propozycja dla rodzin oraz jako dom wakacyjny całoroczny. Zapraszamy na prezentację…
775 000 zł
