Sprzedam mieszkanie 54.56m2 Radzymin Mieszka I
- 18 Mar 12:42
- Nr ogłoszenia: 72919136
PARTNER PREMIUM
1 / 12
- Oferta od firmy
- Rynek pierwotny
- Cena za m² 9879 zł/m²
- Powierzchnia 54.56 m²
- Zabudowa apartamentowiec
- Liczba pokoi 3
- Materiał budynku cegła
- Rok budowy 2026
- Forma własności własność
- Piętro parter
Zakup prosto od Dewelopera.
Istnieje możliwość oglądania w tygodniu jak również w sobotę lub niedzielę
po wcześniejszym umówieniu telefonicznym.
Super lokalizacja.
Mieszkanie 3 pokojowe z ogrodem i miejscem na 2 samochody.
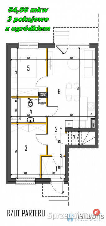
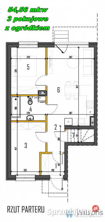
Parter 54,56 mkw - to:
- salon z jadalnią - 22,40 mkw
- Pokój 1 - 10,38 mkw
- Pokój 2 - 9,76 mkw
- korytarz - 2,77 mkw
- schowek - 1,08 mkw
- Łazienka - 5,10 mkw
- wiatrołap - 3,04mkw
- Ogródek - 25 mkw
- 2 miejsca postojowe
100 m do przystanku Autobusu linii 738
Na terenie inwestycji znajduje się 24 lokale o powierzchniach 54.56m2 oraz 63,37m2. Inwestycja podzielona na II Etapy.
Gotowe - Oddane do użytkowania .
Pomagamy w uzyskaniu kredytu na mieszkania.
Każdy Lokal posiada 2 miejsca parkingowe oraz prywatny ogródek
Inwestycja wykonywana z najlepszych materiałów:
• bloczki (Certus)
• Porotherm 25 Dryfix
• Stropy lany
• ogrzewanie podłogowe w całym lokalu, każdy lokal posiada własne liczniki na gaz, wodę, prąd.
Wyposażenie mieszkania
• ocieplenie styropianem + tynk akrylowy
• piec gazowy 2-funkcyjny (energooszczędny)
• ogrzewanie podłogowe w całości apartamentów
• rozprowadzone instalacje C.O, elektryczna, wod-kan
• alarmowa
• stolarka okienna PCV z pakietem 3szybowym 6 komorowe, parapety z konglomeratu
• drzwi wejściowe (stalowe w okleinie pcv)
Standard wykończenia:
• Konstrukcja tradycyjna murowana z cegły ceramicznej
• Ocieplenie styropianem
• Tynki zewnętrzne (akrylowo-silikonowe)
• Posadzki cementowe
• Dach pokryty blachą w rąbek
Tynki wewnętrzne gipsowe wykonane techniką maszynową
• Kanalizacja miejska
Zagospodarowanie terenu:
• Podejście do drzwi z kostki brukowej
• wydzielenie ogródków
• wyznaczone miejsca parkingowe
• wyznaczone miejsce na odpady
Lokalizacja
Inwestycja zlokalizowana w Radzyminie przy ulicy Mieszka I. Każdy Lokale posiadają dwa miejsca parkingowe oraz ogródki
100 m do przystanku Autobusu linii 738 !
W najbliższym otoczeniu Osiedla znajdują się:
Przychodnia
Szpital
Apteka
Przedszkole publiczne
Szkoła podstawowa
Liceum ogólnokształcące
Galeria handlowa (Biedronka, Hebe, CCC, PEPCO, Martens Sport)
Lokalne targowisko
Osiedle jest oddalone od centrum Radzymina o około 500 m (5 minut spacerem) oraz 2,5 km od wjazdu na trasę S8. W pobliskim Wołominie znajduje się centrum handlowe Galeria Wołomin, gdzie dojadą Państwo w 12 minut.
Zapraszamy.
Dodatkowe informacje
- miejsce parkingowe
539 000 zł
9879 zł/m²
