Oferta sprzedaży mieszkania Warszawa 51m2 2 pokojowe
- 19 Mar 19:28
- Nr ogłoszenia: 73221389
1 / 12
- Oferta od firmy
- Rynek wtórny
- Cena za m² 21764 zł/m²
- Powierzchnia 51 m²
- Zabudowa apartamentowiec
- Liczba pokoi 2
- Materiał budynku cegła
- Rok budowy 2025
- Forma własności własność
- Piętro 6
Nowoczesne mieszkanie z dwiema loggiami i dwoma miejscami postojowymi - 50,7 m² w prestiżowym budynku przy Alei Polski Walczącej na Mokotowie
Nowoczesne mieszkanie w sercu Mokotowa - dwie loggie, dwa miejsca postojowe i możliwość stworzenia trzeciego pokoju.
Komfort, światło i architektura klasy premium - mieszkanie w nowej inwestycji przy Alei Polski Walczącej zaprasza.
Design, funkcjonalność i doskonała lokalizacja
Szukasz mieszkania, które łączy nowoczesny styl, przemyślany układ i świetną komunikację z centrum miasta, a jednocześnie oferuje spokój i zieleń w najbliższej okolicy?
Budynek W-20 to najnowsza inwestycja renomowanej MSM Energetyka, z ponad 65-letnim doświadczeniem.
To 55-metrowy apartamentowiec klasy premium z wiszącymi ogrodami na elewacji, dużymi przeszkleniami i aluminiowymi oknami, które nadają bryle lekkości i nowoczesnego charakteru.
Części wspólne zostały zaprojektowane z dbałością o detale, a całość dopełnia monitoring, kontrola dostępu i dwupoziomowy garaż podziemny.
Projekt W20 to przykład nowoczesnej, ekologicznej architektury miejskiej - już od wejścia czuć tu klasę i elegancję.
Funkcjonalny układ z potencjałem aranżacyjnym
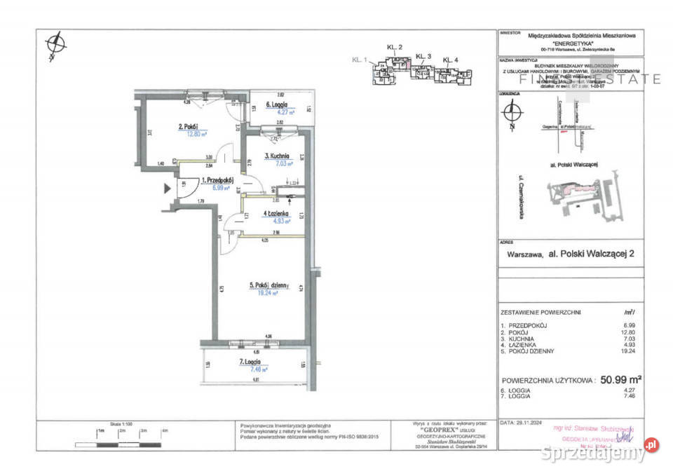
Mieszkanie położone jest na 6. piętrze budynku z 2025 roku i posiada dwustronną ekspozycję północ-południe.
Układ pomieszczeń pozwala na elastyczne dopasowanie przestrzeni do swoich potrzeb - istnieje możliwość wydzielenia trzeciego pokoju lub gabinetu.
W skład mieszkania wchodzą:
pokój dzienny - 19,24 m², jasny i przestronny, z wyjściem na loggię
sypialnia - 12,80 m² z wyjściem na loggię
kuchnia - 7,03 m² - z opcją połączenia z salonem lub wydzielenia osobno
łazienka - 4,93 m²
przedpokój - 6,99 m² z miejscem na zabudowę
dwie loggie - 4,27 m² i 7,46 m² - idealne do relaksu przy porannej kawie lub wieczornym odpoczynku z widokiem na panoramę Mokotowa
Stan deweloperski, do własnej aranżacji i wykończenia według indywidualnego projektu. Istnieje możliwość wykończenia tego wnętrza pod klucz z renomowaną pracownią architektoniczną.
Udogodnienia i atuty inwestycji
nowoczesne osiedle z ochroną, monitoringiem i kontrolą dostępu - bezpieczeństwo i spokój codziennego życia.
wewnętrzne patio z zielenią dostępne wyłącznie dla mieszkańców - prywatna przestrzeń do relaksu.
2 miejsca postojowe (jedno za drugim) w garażu podziemnym - dodatkowo płatne 80 000 zł za komplet.
2 przestronne loggie z ekspozycją północ-południe.
nowoczesny, monitorowany budynek z reprezentacyjnym lobby.
możliwość przeznaczenia lokalu na biuro, kancelarię lub gabinet.
Świetna lokalizacja
Lokalizacja przy Alei Polski Walczącej, na skrzyżowaniu z ulicą Czerniakowską, to jeden z najmocniejszych atutów tej oferty.
To miejsce, które łączy zalety życia w centrum miasta z bliskością natury - w zasięgu krótkiego spaceru znajdują się Łazienki Królewskie oraz Park przy Kopcu Powstania Warszawskiego, idealne do spacerów i rekreacji na świeżym powietrzu.
W budynku dostępne są sklep FRAC oraz drogeria Rossmann, co gwarantuje maksymalną wygodę codziennych zakupów - wszystko masz dosłownie pod ręką.
W najbliższej okolicy znajdziesz również:
liczne sklepy, kawiarnie, restauracje, apteki i punkty usługowe
szkoły i przedszkola - idealne rozwiązanie dla rodzin z dziećmi
nową linię tramwajową przy Alei Polski Walczącej - szybki dojazd do centrum i Wilanowa
przystanki autobusowe linii 107 i 168 - tuż obok budynku
dogodny dojazd do Trasy Siekierkowskiej i obwodnicy S2 - świetne połączenie z każdą częścią Warszawy
To lokalizacja, która spełni oczekiwania nawet najbardziej wymagających - zapewnia komfort życia, świetną komunikację i prestiżową, rozwijającą się część Mokotowa.
Potencjał inwestycyjny
Dzięki lokalizacji i wysokiemu standardowi budynku, mieszkanie doskonale sprawdzi się jako:
inwestycja pod wynajem długoterminowy lub biznesowy,
siedziba kancelarii lub biura,
komfortowy apartament dla singla lub pary pracującej zdalnie.
Dlaczego warto?
Inwestycja: Prestiżowa inwestycja klasy premium (MSM Energetyka)
Komunikacja: świetna komunikacja - tramwaj, metro, bliskość centrum
Aranżacja: możliwość stworzenia trzeciego pokoju / gabinet. Idealne również jako inwestycja pod wynajem lub biuro
Stan prawny i warunki handlowe
Dostępność: mieszkanie odebrane od dewelopera - sprzedaż w oparciu o cesję umowy deweloperskiej. Lokal gotowy do przekazania i natychmiastowego wykończenia.
Łączna cena sprzedaży: 1.195.000 PLN, na którą składają się:
Mieszkanie: 1 110 000 PLN
Miejsce postojowe w garażu podziemnym: 85 000 PLN za komplet (2 miejsca postojowe)
Podsumowanie - idealne miejsce do życia i inwestycji
Nowoczesne, funkcjonalne i pełne potencjału - mieszkanie przy Alei Polski Walczącej to propozycja dla osób, które chcą połączyć styl życia w mieście z poczuciem komfortu i prywatności.
To przestrzeń, którą możesz urządzić po swojemu - stworzyć wymarzony dom, biuro lub pewną inwestycję na lata.
Zadzwoń i umów się na prezentację - poznaj apartament, który łączy nowoczesny styl, funkcjonalność i prestiż Mokotowa.
1 110 000 zł
21764 zł/m²
